Casa Indipendente in Vendita a Barcellona Pozzo di Gotto, 190'000€, 650 m²
        
    
        
    
        
    
    
        In vendita a Barcellona Pozzo di Gotto, a Cannistrà, un ampia palazzina indipendente su 4 livelli circondata da 1500 mq di terreno. Con una superficie di circa 180 mq per piano, l'immobile offre molteplici possibilità di sviluppo. Attualmente allo stato rustico, la casa è composta: 
al piano seminterrato da due ampi depositi e un piccolo appartamento da completare. 
Al piano terra troviamo due appartamenti, uno rifinito con cucina-soggiorno, due camere da letto e bagno, e l'altro da personalizzare. 
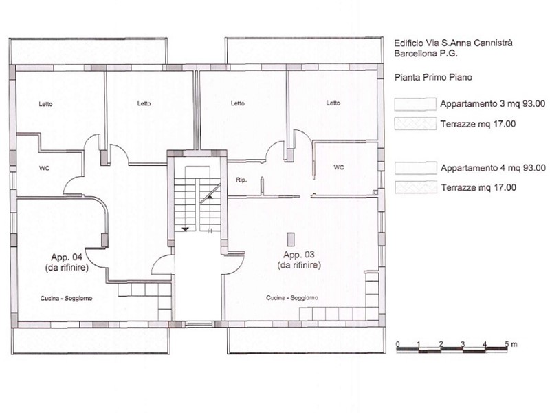
Al primo piano ci sono due ulteriori appartamenti allo stato rustico con cucina-soggiorno, due camere da letto e bagno. 
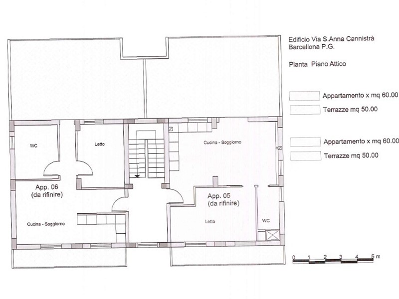
Completano la proprietà due mansarde da rifinire con terrazze panoramiche. Un'opportunità di investimento in una posizione tranquilla con vista mozzafiato. Per maggiori informazioni TEL. AGENZIA 0909707179
	
    
    
    
        
        
            Condizioni economiche
            
                Contratto: Vendita
            
            
                Prezzo: 190'000€
            
            
                
                    Arredato: No
                
            
                
                    Libero: Si
                
            
         
        
            Informazioni principali
            
                Tipologia: Casa Indipendente
            
            
                Città: Barcellona Pozzo di Gotto
            
            
                
                    Superficie: 650 m²
                
            
                
                    N° locali: 10+
                
            
                
                    N° bagni: 6
                
            
                
                    N° Camere: 3
                
            
                
                    Cucina: Abitabile
                
            
                
                    Giardino: Comune
                
            
         
        
            Efficenza energetica
            
                Classe energetica: 2015-G
            
            
                
                    Ipe: 1.00 kwm2
                
            
                
                    Anno di costruzione: 0
                
            
		 
        
                
                    Caratteristiche
                    
                        
                            Cantina: Si
                        
                    
                 
            
            
                Dati inserzione
                
                    ID Offrocasa.com: 10445916
                
                
                
                    Data inserimento: 01/05/2024
                
                
                    
                        Rif. Agenzia: Cod. rif 3147201VRG
                    
                
             
        
	 
    
    
        
Casa Indipendente in Vendita a Barcellona Pozzo di Gotto, 190'000€, 650 m²