Casa Indipendente in Vendita a Monteprandone, zona Centobuchi, 340'000€, 180 m², con Box

Locali: 6
Camere: 3
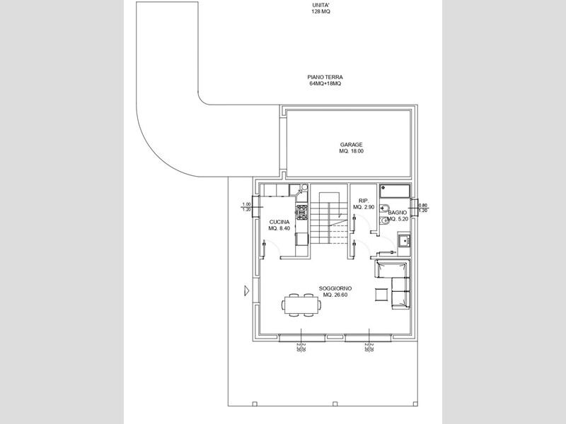
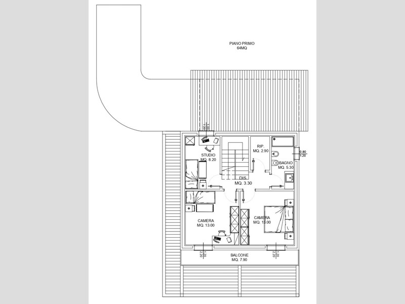
MONTEPRANDONE (AP) - Proponiamo in vendita in Contrada San Donato a CENTOBUCHI, villino singolo in bioedilizia di nuova costruzione, delle dimensioni di 128 mq oltre a porticato esterno, giardino e posto auto. L'abitazione, dallo stile pulito, versatile ed elegante, si sviluppa su due livelli: al piano terra troviamo ingresso su arioso living, in continuità con l'esterno mediante un ampio portico, cucina separata (che, tuttavia, su richiesta del cliente, può essere incorporata al soggiorno e resa a vista), bagno di servizio e ripostiglio; al piano superiore due camere che affacciano su un delizioso balcone, studiolo, secondo bagno e ripostiglio/cabina armadio. Incluso nel prezzo garage di 18 mq collocato nella zona posteriore della casa (lato strada). La costruzione sarà interamente in bioedilizia, ovvero presenterà struttura portante in legno e coibentazione in canapa e calce e risulterà energeticamente autosufficiente grazie all'installazione dell'impianto fotovoltaico (non è previsto l'allaccio del gas!). La richiesta complessiva per il villino CHIAVI IN MANO, compreso il terreno edificabile, è di € 310.000. Questo villino è la soluzione ideale per una famiglia che ricerca un'abitazione indipendente e di altissima qualità costruttiva ma situata in un contesto molto servito, a pochi minuti da Porto d'Ascoli. Il villino andrà a inserirsi all'interno di un eco-villaggio che sorgerà in località San Donato e che sarà interamente composto da abitazioni ed edifici costruiti secondo i più moderni canoni della bioedilizia.

Condizioni economiche

Contratto: Vendita
Prezzo: 340'000€
Arredato: No

Informazioni principali

Tipologia: Casa Indipendente
Città: Monteprandone
Zona: Centobuchi
Superficie: 180 m²
N° locali: 6
N° Camere: 3
Box: Si
Posto auto: Si
Giardino: Si

Efficenza energetica

Classe energetica: A2
Anno di costruzione: 0
Condizioni stabile: Nuovo

Dati inserzione

ID Offrocasa.com: 10433395
Data inserimento: 14/04/2024
Rif. Agenzia: 2344
Rif. Agenzia 2344

Centro Servizi Immobiliari

Via F.Turati, 70 - San Benedetto del Tronto (AP)
392.9812597
Richiedi Info dal form:
Accetto l'Informativa Privacy


Centro Servizi Immobiliari

Via F.Turati, 70 - San Benedetto del Tronto (AP)

Casa Indipendente in Vendita a Monteprandone, zona Centobuchi, 340'000€, 180 m², con Box

Chiama
Contatta