Villa in Vendita a Vecchiano, zona Avane, 450'000€, 350 m², con Box

Locali: 10+
Bagni: 3
Camere: 6
Piano: su più livelli
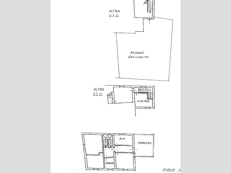
( Riferimento Agenzia 821 ) Nel Comune di Vecchiano, in località Avane, proponiamo in VENDITA grande VILLA SINGOLA SU TRE LIVELLI, da rivedere internamente, DIVISA IN DUE UNITA' IMMOBILIARI INDIPENDENTI. Alla PRIMA UNITA' , di circa 170 mq, si accede tramite gradevole giardino esclusivo, mentre internamente si compone di ampio ingresso, sala pranzo con angolo cottura open-space, soggiorno e salotto con camino, antibagno e bagno oltre ripostiglio sottoscala; tramite scala in marmo si accede al primo piano dove troviamo disimpegno notte che conduce a tre belle camere matrimoniali e al bagno. Alla SECONDA UNITA' si accede da resede-giardino privato con accesso indipendente. Internamente, al piano terra troviamo soggiorno, salendo le scale al primo piano troviamo sala da pranzo e cucina abitabile, al secondo piano disimpegno notte, tre camere matrimoniali, studio e bagno, oltre gradevole terrazza di 20 mq. Esternamente due garages e locali di sgombero/lavanderia , oltre grande giardino e terreno adiacente all'abitazione per complessivi 5210 mq. Richiesta 450.000 trattabili... IDEALE PER DUE NUCLEI FAMILIARI E PER GLI AMANTI DELLA NATURA E DELLA TERRA. IMMOBILE DA RIVEDERE INTERNAMENTE CON POSSIBILITA' DI SUDDIVIDERE GLI SPAZI DIVERSAMENTE DALLO STATO ATTUALE. OTTIMA POSIZIONE ED ESPOSIZIONE. (Riferimento agenzia 821) ATTENZIONE! si specifica che gli indirizzi degli annunci sono puramente indicativi e vogliono solo essere un utile ausilio nell'individuazione della zona nella quale e' ubicato l'immobile, pur rispettando la privacy e la riservatezza dei venditori.

Condizioni economiche

Contratto: Vendita
Prezzo: 450'000€
Prezzo trattabile: si

Informazioni principali

Tipologia: Villa
Città: Vecchiano
Zona: Avane
Superficie: 350 m²
N° locali: 10+
N° bagni: 3
N° Camere: 6
Piano: su più livelli
Box: si
Posto auto: 6
Giardino: privato

Efficenza energetica

Classe energetica: G
Ipe: 160,00 kwm2
Ristrutturato: no

Dati inserzione

ID Offrocasa.com: 10431091
Data inserimento: 12/04/2024
Rif. Agenzia: 1255635/255/821
Rif. Agenzia 1255635/255/821

TESTI Agenzia Immobiliare

Via Via G. Di Vittorio, 53 - San Giuliano Terme (Pisa)
050861233
Richiedi Info dal form:
Accetto l'Informativa Privacy


TESTI Agenzia Immobiliare

Via Via G. Di Vittorio, 53 - San Giuliano Terme (Pisa)

Villa in Vendita a Vecchiano, zona Avane, 450'000€, 350 m², con Box

Chiama
Contatta