Casale in Vendita a Carrara, zona Gragnana, 250'000€, 230 m²

Locali: 10
Bagni: 1
Camere: 4
Piano: piano terra
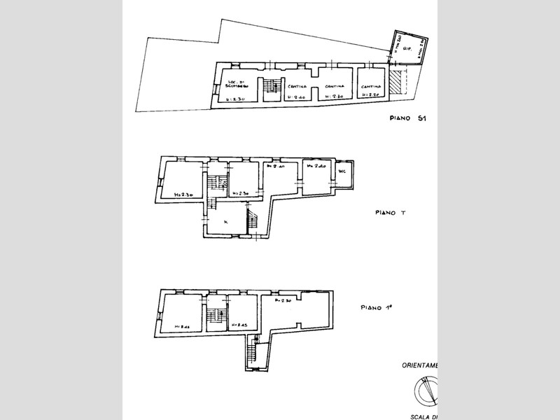
Rif C/15 - Comune di Carrara, località Gragnana - Vendesi casale di ampia metratura disposto su 2 livelli più ampio piano cantine/rustico. L'immobile è composto da oltre 10 vani; completano la proprietà terreno circostante di mq 700 circa e piazzale posto auto. Ottimo per realizzare una bifamigliare. ✅Richiesta € 250.000,00 trattabili

Condizioni economiche

Contratto: Vendita
Prezzo: 250'000€
Prezzo trattabile: si

Informazioni principali

Tipologia: Casale
Città: Carrara
Zona: Gragnana
Superficie: 230 m²
N° locali: 10
N° bagni: 1
N° Camere: 4
Piano: piano terra
Posto auto: 2

Efficenza energetica

Classe energetica: In attesa di certificazione
Ristrutturato: no

Caratteristiche

Cantina: si

Dati inserzione

ID Offrocasa.com: 10431000
Data inserimento: 12/04/2024
Rif. Agenzia: 1069041/571/C/15
Rif. Agenzia 1069041/571/C/15

NUOVA DOMUS Carrara

Via Via Verdi,, 1 - Carrara (Massa Carrara)
0585777712
Richiedi Info dal form:
Accetto l'Informativa Privacy


NUOVA DOMUS Carrara

Via Via Verdi,, 1 - Carrara (Massa Carrara)

Casale in Vendita a Carrara, zona Gragnana, 250'000€, 230 m²

Chiama
Contatta