Immobile commerciale in Vendita a Trieste, 440'000€, 1169 m²

Locali: 10+
Bagni: 7
Piano: 1°
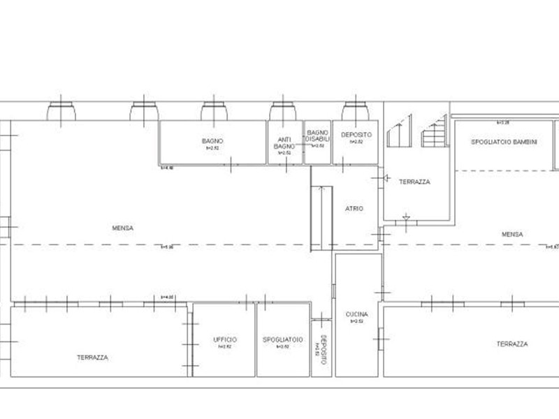
Locale commerciale (ex asilo nido) di 898 mq con ampio terrazzo di 260 mq a livello, collocato al primo piano di un edificio elevato su due livelli fuori terra. L'unità, con altezza interna di 4,00 m, possiede impianti indipendenti e due ingressi, di cui uno scoperto. All'interno si compone di 2 aree gioco, 3 spogliatoi, un cucinotto, una mensa, un'area dedicata ad attività di movimento, una zona relax, 3 ripostigli e servizi igienici. Vi è la possibilità di frazionare l'immobile in due unità distinte. L'immobile è ubicato nel capoluogo triestino, all'interno di un importante punto di snodo per il traffico ferroviario e stradale.

Condizioni economiche

Contratto: Vendita
Prezzo: 440'000€
Libero: Si

Informazioni principali

Tipologia: Immobile commerciale
Città: Trieste
Superficie: 1169 m²
N° locali: 10+
N° bagni: 7
Piano:
Cucina: Abitabile

Efficenza energetica

Classe energetica: 2015-C
Ipe: 93.33 kwm2
Anno di costruzione: 0

Dati inserzione

ID Offrocasa.com: 10423472
Data inserimento: 03/04/2024
Rif. Agenzia: 2024010TS
Rif. Agenzia 2024010TS

Idea Service Real Estate

Via Giuseppe Ligabue, 2/C - Venezia
041 985057
Richiedi Info dal form:
Accetto l'Informativa Privacy


Idea Service Real Estate

Via Giuseppe Ligabue, 2/C - Venezia

Immobile commerciale in Vendita a Trieste, 440'000€, 1169 m²

Chiama
Contatta