Immobile commerciale in Vendita a Latisana, 491'000€, 697 m²

Locali: 10+
Bagni: 6
Piano: Terra
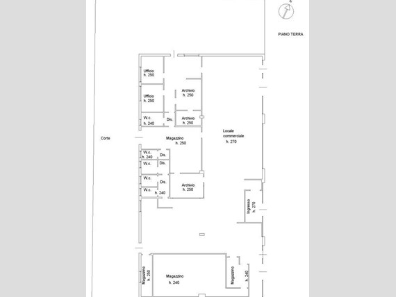
Proponiamo in vendita n.2 locali commerciali adiacenti per 697 mq complessivi, con area di pertinenza esclusiva di 430 mq destinata a parcheggio, facenti parte di un più ampio capannone di un piano di elevazione. Un locale, di superficie 564 mq e altezza 2,70 mt, ospita un'area commerciale, 3 vani ad uso direzionale, 3 archivi, 4 magazzini, 5 servizi igienici e disimpegni; il secondo locale di superficie 133 mq e altezza 2,70 mt, è composto da un'area commerciale, un ripostiglio e un servizio igienico con antibagno e risulta attualmente locato. Le unità sono ampiamente vetrinate e si trovano in un ottima posizione, direttamente sul fronte strada di via Lignano Sabbiadoro. L'immobile infatti è ubicato in località Pertegada, lungo la strada regionale che collega Latisana a Lignano Sabbiadoro, a 17 km dal casello autostradale della A4 Torino - Trieste.

Condizioni economiche

Contratto: Vendita
Prezzo: 491'000€
Libero: Si

Informazioni principali

Tipologia: Immobile commerciale
Città: Latisana
Superficie: 697 m²
N° locali: 10+
N° bagni: 6
Piano: Terra
Posto auto: Si
Giardino: Privato

Efficenza energetica

Classe energetica: 2015-F
Ipe: 91.60 kwm2
Climatizzatore: Si
Anno di costruzione: 0

Dati inserzione

ID Offrocasa.com: 10423471
Data inserimento: 03/04/2024
Rif. Agenzia: 2024012UD
Rif. Agenzia 2024012UD

Idea Service Real Estate

Via Giuseppe Ligabue, 2/C - Venezia
041 985057
Richiedi Info dal form:
Accetto l'Informativa Privacy


Idea Service Real Estate

Via Giuseppe Ligabue, 2/C - Venezia

Immobile commerciale in Vendita a Latisana, 491'000€, 697 m²

Chiama
Contatta