Casa Indipendente in Vendita a Noventa Vicentina, 310'000€, 170 m²

Locali: 4
Bagni: 3
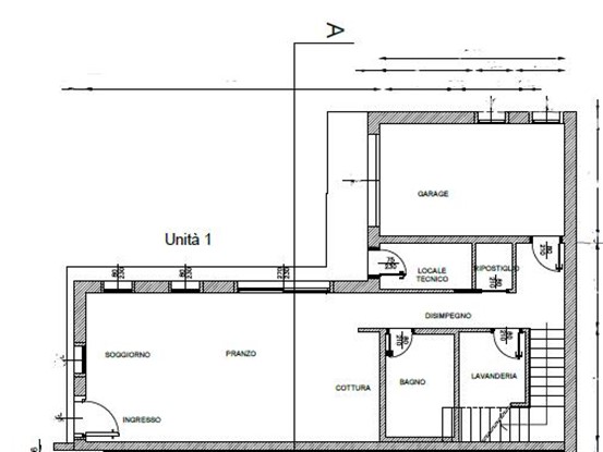
A Noventa Vicentina, proponiamo porzione di bifamialiare di nuova costruzione, con data di consegna dicembre 2024. La soluzione è composta al piano terra da ingresso indipendente su spaziosa zona giorno con angolo cottura, bagno, lavanderia e ripostiglio. Sempre al piano terra troviamo garage singolo di circa 18mq. Al piano primo troviamo la zona notte composta da tre camere da letto di cui una con cabina armadio e bagno e ulteriore bagno di servizio per le altre due camere. Il costo è comprensivo di: - spese per i professionisti, disegni di progetto e asseverazioni; - dotazioni oggetto del super/sisma bonus; - demolizione del fabbricato. Sono escluse le spese di: -oneri per la presentazione della pratica al comune di competenza; I serramenti saranno in alluminio con doppio vetro e tapparelle in alluminio; il pavimento sarà ad alto isolamento termico e acustico con sistema di riscaldamento/raffreddamento radiante a pavimento. Impianto fotovoltaico. Per maggiori informazioni e approfondimenti riguardante finiture o capitolati, si consiglia di fissare un appuntamento presso la Ns. sede Professionecasa di Noventa Vicentina in Via Matteotti n° 113, al numero 0444-887063. N.B. Le foto presenti sono da considerarsi solo a titolo illustrativo e dimostrativo. A tutela della privacy l'indirizzo indicato non corrisponde all'esatta posizione dell'immobile. Rif. N398

Condizioni economiche

Contratto: Vendita
Prezzo: 310'000€

Informazioni principali

Tipologia: Casa Indipendente
Città: Noventa Vicentina
Superficie: 170 m²
N° locali: 4
N° bagni: 3

Efficenza energetica

Classe energetica:
Climatizzatore: Si
Anno di costruzione: 0

Dati inserzione

ID Offrocasa.com: 10401188
Data inserimento: 07/03/2024
Rif. Agenzia: Cod. rif N398VRG
Rif. Agenzia Cod. rif N398VRG

Professionecasa

Via Matteotti 113 - Noventa Vicentina (Vicenza)
0444/887063
Richiedi Info dal form:
Accetto l'Informativa Privacy


Professionecasa

Via Matteotti 113 - Noventa Vicentina (Vicenza)

Casa Indipendente in Vendita a Noventa Vicentina, 310'000€, 170 m²

Chiama
Contatta