Appartamento in Vendita a Grottaglie, 328'000€, 170 m²

Locali: 5
Bagni: 2
Camere: 3
Piano: Terra
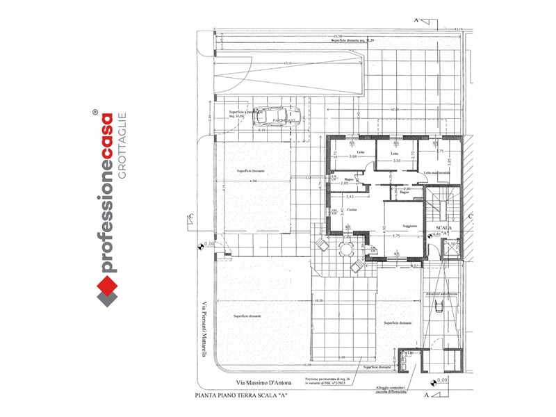
GROTTAGLIE - Nuova Costruzione di Classe A - Una villa in centro? UN SOGNO! DA NOI È REALTÀ Se sei alla ricerca di un'abitazione moderna, in un contesto di poche unità abitative, con ingresso indipendente e con ampi spazi esterni? Abbiamo l'opportunità perfetta per te! Vi presentiamo una nuova costruzione in classe A, con tripla esposizione solare, precisamente situata tra Via D'Antona e Via Mattarella. Nel particolare si tratta di un appartamento posto al piano terra con ingresso esclusivo da Via Mattarella, gli accessi all'unità abitativa saranno uno carrabile ed uno pedonale. Questa singolare proposta vanta un'area esterna di 450mq che si alterna tra piazzale pavimentato e area a verde, perfetta per godersi il bel tempo e respirare aria fresca. L'appartamento prevede tre camere da letto, doppi servizi e una zona living pensata come open-space, spaziosa e luminosa. L' unità abitativa sarà dotata di impianti all'avanguardia, tra cui un impianto fotovoltaico da 1,5 Kwatt, pannello solare termico, riscaldamento e raffreddamento a pavimento e un videocitofono a colori gestibile direttamente dallo smartphone. Una dimora che unisce l'efficienza energetica al massimo comfort abitativo. Inoltre, avrai la possibilità di personalizzare la disposizione degli spazi interni, i rivestimenti, pavimenti e il colore delle porte interne, rendendo la tua casa un vero rifugio su misura per te e la tua famiglia. La particolarità di questo corpo scala, oltre all'esposizione angolare che garantisce un'ottima luce agli appartamenti, è che ogni piano prevede un solo appartamento e l'altezza delle unità abitative sarà di 3metri (a differenza dei canonici 2.7m). Possibilità di accorpare box auto al piano seminterrato o cantina. Affrettati a prenotare il tuo appartamento! La consegna è prevista per Dicembre 2025, ma le unità stanno andando a ruba. Non lasciarti sfuggire questa straordinaria opportunità di vivere nella casa dei tuoi sogni. Contattaci oggi stesso per maggiori informazioni e per prenotare una visita. Il tuo nuovo stile di vita ti attende! Nota: L'immagine è a scopo illustrativo e potrebbe non rispecchiare esattamente la proprietà in vendita. Qualora la planimetria risultasse sgranata, è possibile contattarci per prenderne visione in qualità superiore. Rif. DG2405

Condizioni economiche

Contratto: Vendita
Prezzo: 328'000€
Arredato: No
Libero: Si

Informazioni principali

Tipologia: Appartamento
Città: Grottaglie
Superficie: 170 m²
N° locali: 5
N° bagni: 2
N° Camere: 3
Piano: Terra
Cucina: Abitabile
Giardino: Comune

Efficenza energetica

Classe energetica:
Anno di costruzione: 2023
Riscaldamento: autonomo

Caratteristiche

Ascensore: Si
Videocitofono: Si

Dati inserzione

ID Offrocasa.com: 10385000
Data inserimento: 18/02/2024
Rif. Agenzia: DG2405VRG
Rif. Agenzia DG2405VRG

Professionecasa

Via La Sorte 44/b - Grottaglie (Taranto)
0995638252
Richiedi Info dal form:
Accetto l'Informativa Privacy


Professionecasa

Via La Sorte 44/b - Grottaglie (Taranto)

Appartamento in Vendita a Grottaglie, 328'000€, 170 m²

Chiama
Contatta