Terreno edificabile in Vendita a Ameglia, zona Piano di Ameglia, 160'000€, 1300 m²

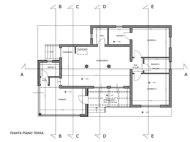
Nel piano di Ameglia, in posizione comoda, terreno edificabile di circa 1.300mq con progetto approvato per la costruzione di monofamiliare di circa 120mq.

Condizioni economiche

Contratto: Vendita
Prezzo: 160'000€

Informazioni principali

Tipologia: Terreno edificabile
Città: Ameglia
Zona: Piano di Ameglia
Superficie: 1300 m²

Efficenza energetica

Classe energetica: Esente

Dati inserzione

ID Offrocasa.com: 10372788
Data inserimento: 06/02/2024
Rif. Agenzia: 1240459/1682/23966
Rif. Agenzia 1240459/1682/23966

LUCHESINI ROBERTA

Via Via Provinciale,, 75 - Arcola (La Spezia)
0187918814
Richiedi Info dal form:
Accetto l'Informativa Privacy


LUCHESINI ROBERTA

Via Via Provinciale,, 75 - Arcola (La Spezia)

Terreno edificabile in Vendita a Ameglia, zona Piano di Ameglia, 160'000€, 1300 m²

Chiama
Contatta