Casa Indipendente in Vendita a Monteriggioni, zona Uopini, 580'000€, 180 m², con Box

Locali: 8
Bagni: 3
Camere: 4
Piano: su più livelli
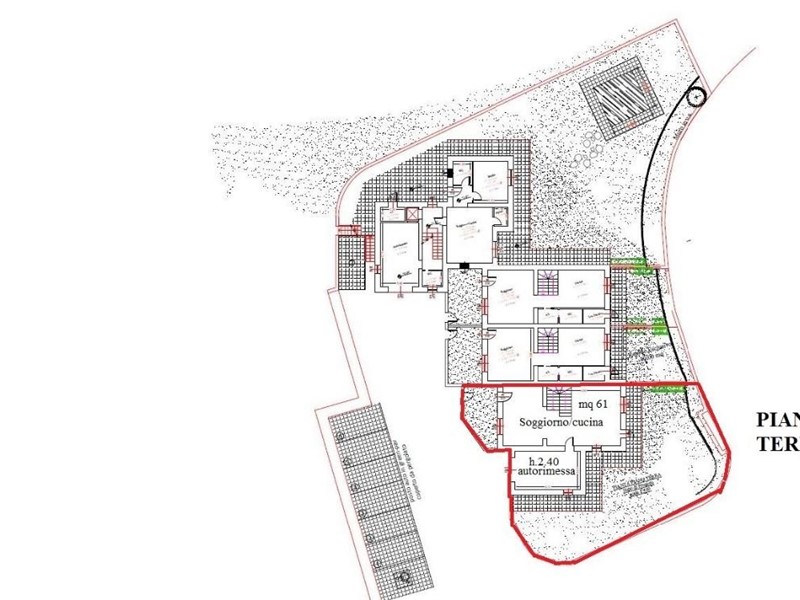
UOPINI Nuova realizzazione di 4 unità immobiliari, l'unità immobiliare oggetto di vendita è la porzione terra-tetto di testa di mq 180 con ingresso indipendente da giardino esclusivo di mq 170. L'immobile disposto su due livelli è composto al piano terra da: ingresso, soggiorno, cucina, bagno e autorimessa. Da una scala interna si accede al primo piano composto da 4 camere da letto (due con cabina armadio), due terrazzi e 2 bagni. Garage di mq 25 circa e giardino esclusivo di mq 170. Gli immobili verranno realizzati in classe energetica A +++ e saranno dotati di impianto fotovoltaico. Ottimo capitolato e possibilità di personalizzazione nelle rifiniture. Consegna entro la fine del 2025.

Condizioni economiche

Contratto: Vendita
Prezzo: 580'000€

Informazioni principali

Tipologia: Casa Indipendente
Città: Monteriggioni
Zona: Uopini
Superficie: 180 m²
N° locali: 8
N° bagni: 3
N° Camere: 4
Piano: su più livelli
Box: si
Giardino: privato

Efficenza energetica

Classe energetica: In attesa di certificazione
Anno di costruzione: 2022

Caratteristiche

Videocitofono: si

Dati inserzione

ID Offrocasa.com: 10363015
Data inserimento: 26/01/2024
Rif. Agenzia: 973697/1104/R/646
Rif. Agenzia 973697/1104/R/646

Immobiliare Tuscany

Strada Strada Massetana Romana, /A int. 11, 50 - Siena
0577271939
Richiedi Info dal form:
Accetto l'Informativa Privacy


Immobiliare Tuscany

Strada Strada Massetana Romana, /A int. 11, 50 - Siena

Casa Indipendente in Vendita a Monteriggioni, zona Uopini, 580'000€, 180 m², con Box

Chiama
Contatta