Capannone in Vendita a Milzano, 220'000€, 453 m²

Locali: 1
Piano: t
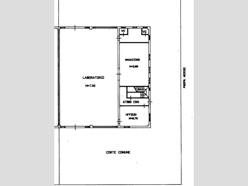
MILZANO, nella zona artigianale ed industriale e con accesso dalla strada provinciale, proponiamo porzione di capannone con accesso carraio indipendente + appartamento. Libero su 3 lati. Area privata di 530 mq. L'immobile è composto da una parte di capannone a tutta altezza (h. 7 mt) di 235 mq, una parte di magazzino di 52 mq (h 2,8mt), zona bagni-spogliatoi di 18 mq, ufficio di 24 mt. Disimpegno e vano scale di 24 mq con scala che accede all'ingresso indipendente dell'appartamento posto al primo piano di 120 mq composto da: Soggiorno con zona cucina a vista, corridoio, 2 camere da letto, 2 bagni e guardaroba. Tutti i pavimenti dell'appartamento sono in monocottura posato fugato in diagonale. L'appartamento è termoautonomo.

Condizioni economiche

Contratto: Vendita
Prezzo: 220'000€
Arredato: No

Informazioni principali

Tipologia: Capannone
Città: Milzano
Vicinanze: Strada Trafficata
Superficie: 453 m²
N° locali: 1
Piano: t

Efficenza energetica

Classe energetica: G
Ipe: 519.96 KWh/m2a
Anno di costruzione: 1997
Condizioni stabile: Buono

Dati inserzione

ID Offrocasa.com: 10352221
Data inserimento: 17/01/2024
Rif. Agenzia: 87
Rif. Agenzia 87

UNICA - SERVIZI IMMOBILIARI - SRL

Piazza Monsignor Giuseppe Almici nr 13 - Brescia (BS)
030.2420821
Richiedi Info dal form:
Accetto l'Informativa Privacy


UNICA - SERVIZI IMMOBILIARI - SRL

Piazza Monsignor Giuseppe Almici nr 13 - Brescia (BS)

Capannone in Vendita a Milzano, 220'000€, 453 m²

Chiama
Contatta