Bilocale in Vendita a Assisi, zona santa maria degli angeli, 120'000€, 65 m²

Locali: 2
Bagni: 1
Camere: 1
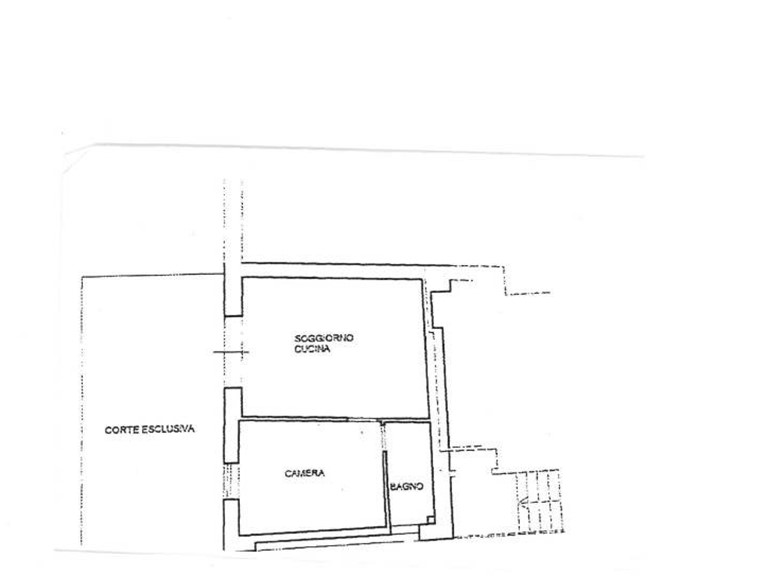
Vicinissimo ad Assisi (PG) esattamente a Santa Maria degli Angeli, in zona residenziale centralissima a ridosso di tutti i servizi, proponiamo in vendita comodo appartamento al piano terra di una palazzina di maggiore consistenza completamente ristrutturata, della superficie commerciale complessiva di circa 65 mq. L'immobile, in ottimo stato, è composto da soggiorno con cucina a vista, una camera da letto matrimoniale ed un bagno. Completano la proprietà corte esterna esclusiva della superficie di circa 60 mq e due posti auto riservati. Possibilità di acquisto con la formula del “RENT TU BUY” fino a dieci anni. Richiesta euro 120.000 CELL 3939130938 pagina facebook Immobiliare Caponi GUARDA IL VIDEO https://www.facebook.com/reel/750573393617802 www.immobiliarecaponiroberta.com

Condizioni economiche

Contratto: Vendita
Prezzo: 120'000€

Informazioni principali

Tipologia: Bilocale
Città: Assisi
Zona: santa maria degli angeli
Superficie: 65 m²
N° locali: 2
N° bagni: 1
N° Camere: 1
Posto auto: 1

Efficenza energetica

Classe energetica: In fase di valutazione

Dati inserzione

ID Offrocasa.com: 10330017
Data inserimento: 30/12/2023
Rif. Agenzia: 120
Rif. Agenzia 120

Immobiliare Caponi Roberta

Via Assisi 38 - Perugia
393.9130938 075.7824129
Richiedi Info dal form:
Accetto l'Informativa Privacy


Condividi

Immobiliare Caponi Roberta

Via Assisi 38 - Perugia

Bilocale in Vendita a Assisi, zona santa maria degli angeli, 120'000€, 65 m²

Chiama
Contatta