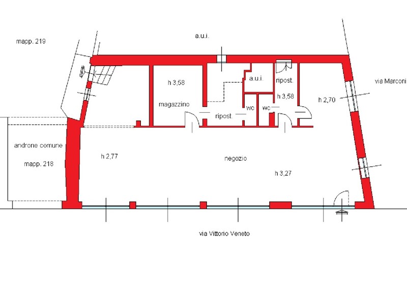
Negozio in Vendita a Golasecca, 30'000€, 150 m²
        
    
        
    
        
    
    
        Centralissimo - Vendesi negozio di oltre 150 mq. con 4 vetrine fronte strada.
L'immobile veniva utilizzato come market ed è caratterizzato da un open space  di 150 mq. , oltre che  locale per celle frigo e servizio/spogliatoio.
La proprietà necessita di interventi.
Ciò che lo rende molto interessante oltre al prezzo è la posizione e la visibilità grazie alle 4 vetrine.
	
    
    
    
        
        
            Condizioni economiche
            
                Contratto: Vendita
            
            
                Prezzo: 30'000€
            
            
                
                    Arredato: No
                
            
                
                    Libero: Si
                
            
         
        
            Informazioni principali
            
                Tipologia: Negozio
            
            
                Città: Golasecca
            
            
                
                    Superficie: 150 m²
                
            
                
                    N° locali: 2
                
            
                
                    N° bagni: 1
                
            
                
                    Piano: Terra
                
            
         
        
            Efficenza energetica
            
                Classe energetica: 2015-F
            
            
                
                    Ipe: 491.13 kwm2
                
            
                
                    Anno di costruzione: 1961
                
            
                
                    Riscaldamento: autonomo 
                
            
		 
        
            
                Dati inserzione
                
                    ID Offrocasa.com: 10310758
                
                
                
                    Data inserimento: 08/12/2023
                
                
                    
                        Rif. Agenzia: cod. rif6045602VCG
                    
                
             
        
	 
    
    
        
Negozio in Vendita a Golasecca, 30'000€, 150 m²