Ufficio in Vendita a Pistoia, 590'000€, 600 m²

Locali: 3
Bagni: 2
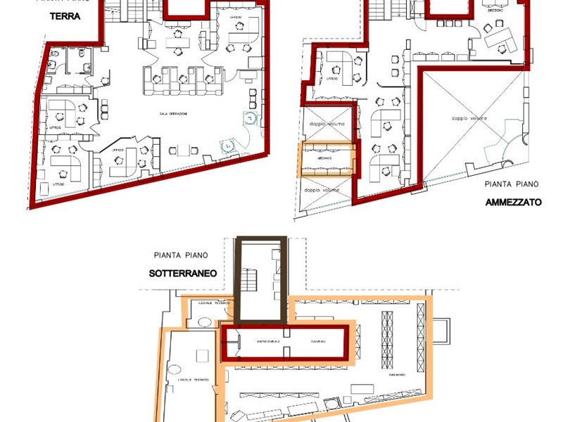
In zona centrale di Pistoia, Porta lucchese, disponiamo di immobile attualmente adibito a filiale bancaria: libero su 2 lati, disposto su 3 piani, di cui uno soppalcato. Il piano terra è formato da un ampia stanza più 3 stanze ed i servizi. Da questo piano si ha accesso sia al piano superiore, suddiviso come il piano terra, sia al piano seminterrato dove troviamo l' archivio ed altre stanze ad uso rimessa e locali tecnici. Immobile di complessivi mq 600 circa. Categoria catastale D/5.

Condizioni economiche

Contratto: Vendita
Prezzo: 590'000€

Informazioni principali

Tipologia: Ufficio
Città: Pistoia
Superficie: 600 m²
N° locali: 3
N° bagni: 2

Efficenza energetica

Classe energetica:
Anno di costruzione: 0

Dati inserzione

ID Offrocasa.com: 10302428
Data inserimento: 28/11/2023
Rif. Agenzia: 800PLUCCHESEVCU
Rif. Agenzia 800PLUCCHESEVCU

Professionecasa

Via Roma,95 - Agliana (Pistoia)
0574/679662
Richiedi Info dal form:
Accetto l'Informativa Privacy


Professionecasa

Via Roma,95 - Agliana (Pistoia)

Ufficio in Vendita a Pistoia, 590'000€, 600 m²

Chiama
Contatta