Quadrilocale in Vendita a Roma, zona TIBURTINA CENTRO, 320'000€, 105 m²
        
    
        
    
        
    
    
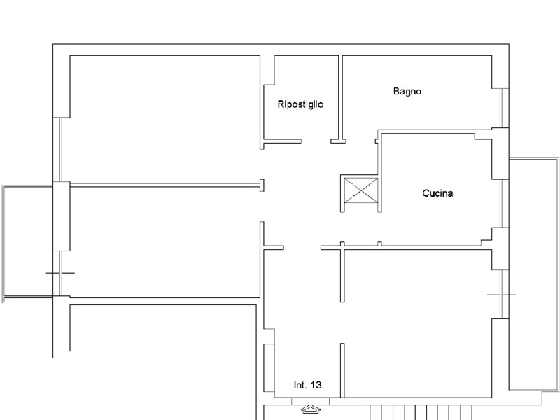
        In Via Pietro Ottoboni in palazzina signorile con servizio di portierato 5° piano di 105 mq. composto da ingresso, soggiorno, 2 ampie camere, ripostiglio, ampio servizio, cucina e 2 balconi. Doppia esposizione Sud (le stanze), Nord e quindi molto luminoso. Appartamento nelle condizioni originali tranne il bagno che è stato ristrutturato circa una decina di anni fa. Portoncino blindato, Infissi in alluminio. Ottimo come investimento per eventuale locazione a studenti 
	
    
    
    
        
        
            Condizioni economiche
            
                Contratto: Vendita
            
            
                Prezzo: 320'000€
            
            
                
                    Prezzo trattabile: SI
                
            
                
                    Arredato: NO
                
            
                
                    Libero: SUBITO
                
            
         
        
            Informazioni principali
            
                Tipologia: Quadrilocale
            
            
                Città: Roma
            
            
                
                    Zona: TIBURTINA CENTRO
                
            
                
                    Vicinanze: STAZIONE TIBURTINA E UNIVERSITA' LA SAPIENZA
                
            
                
                    Superficie: 105 m²
                
            
                
                    N° locali: 4
                
            
                
                    N° bagni: 1
                
            
                
                    N° Camere: 3
                
            
                
                    Piano: 5
                
            
                
                    N° balconi: 2
                
            
                
                    Box: NO
                
            
                
                    Posto auto: NO
                
            
                
                    Cucina: abitabile
                
            
                
                    Giardino: no
                
            
                
                    Esposizione: sud - nord
                
            
         
        
            Efficenza energetica
            
                Classe energetica: G
            
            
                
                    Ipe: -
                
            
                
                    Climatizzatore: NO
                
            
                
                    Anno di costruzione: 1969
                
            
                
                    Condizioni stabile: buone
                
            
                
                    Ristrutturato: originale
                
            
                
                    Pavimenti: marmittoni
                
            
                
                    Serramenti esterni: in alluminio doppi vetri
                
            
                
                    Impianti a norma: no
                
            
                
                    Riscaldamento: CENTRALIZZATO
                
            
		 
        
                
                    Caratteristiche
                    
                        
                            Cantina: no
                        
                    
                        
                            Ascensore: si
                        
                    
                        
                            Porta blindata: si
                        
                    
                        
                            Cancello elettrico: si
                        
                    
                        
                            Videocitofono: si
                        
                    
                        
                            Impianto allarme: no
                        
                    
                 
            
            
                Dati inserzione
                
                    ID Offrocasa.com: 10273147
                
                
                
                    Data inserimento: 02/11/2023
                
                
             
        
	 
    
    
        
Quadrilocale in Vendita a Roma, zona TIBURTINA CENTRO, 320'000€, 105 m²