Quadrilocale in Vendita a Rende, 143 m²

Locali: 4
Bagni: 2
Camere: 2
Piano: 6°
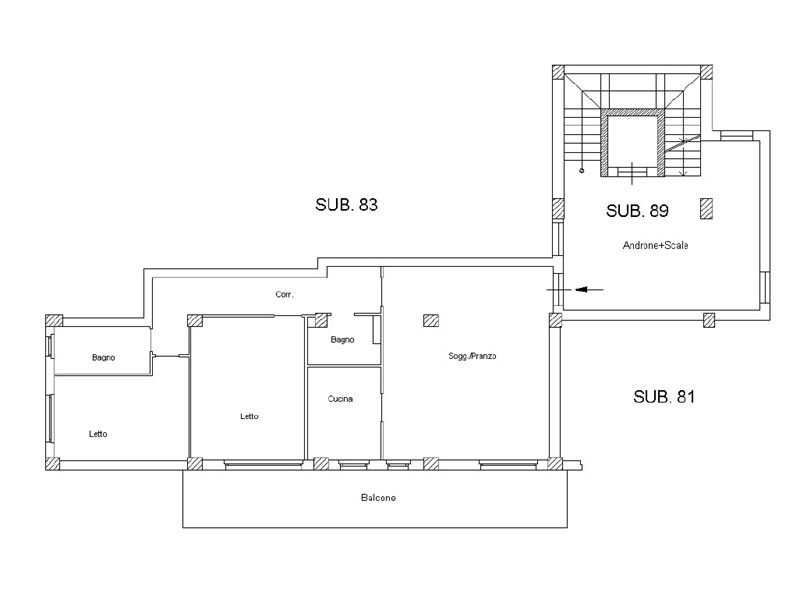
Nel cuore di Roges, in contesto tranquillo ma vicino alle maggiori attività commerciali, offriamo la disponibilità di un appartamento di recente costruzione, posto al sesto piano. L'immobile ha un'ottima classe energetica ed è realizzato con sistemi costruttivi innovativi, l'appartamento è così composto: ingresso, cucina abitabile, soggiorno , due stanza da letto, due bagno e comodo terrazzo. POSSIBILITA DI PERSONALIZZARE LE RIFINITURE. Gabetti Franchising Agency RENDE Via Carlo Bilotti 10 - 87036 Rende. Tel. 0984659552 Cell. 3335861969 email rende@gabetti.it Il presente annuncio non costituisce, in alcun modo, vincolo contrattuale in relazione al fatto che potrebbe includere errori di trascrizione riguardo i dati indicati. Invitiamo per correttezza a verificare personalmente i dati al momento della visione, nella massima trasparenza.

Condizioni economiche

Contratto: Vendita
Prezzo: Prezzo su richiesta
Libero: Si

Informazioni principali

Tipologia: Quadrilocale
Città: Rende
Superficie: 143 m²
N° locali: 4
N° bagni: 2
N° Camere: 2
Piano:
Cucina: Abitabile
Giardino: Comune

Efficenza energetica

Classe energetica:
Climatizzatore: Si
Anno di costruzione: 0
Riscaldamento: autonomo

Caratteristiche

Ascensore: Si
Videocitofono: Si

Dati inserzione

ID Offrocasa.com: 10251595
Data inserimento: 11/10/2023
Rif. Agenzia: Cod. rif 3093759VRG
Rif. Agenzia Cod. rif 3093759VRG

Gabetti

Via Carlo Bilotti 10 - Rende (Cosenza)
0984/1863870
Richiedi Info dal form:
Accetto l'Informativa Privacy


Condividi

Gabetti

Via Carlo Bilotti 10 - Rende (Cosenza)

Quadrilocale in Vendita a Rende, 143 m²

Chiama
Contatta