Trilocale in Vendita a Adria, 85'000€, 62 m², arredato

Locali: 3
Bagni: 1
Camere: 1
Piano: 1°
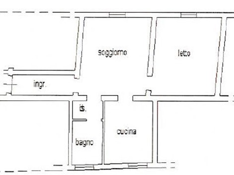
Rif. A4259 - VENDESI ad Adria, a due passi dal centro, appartamento trilocale, sviluppato al primo piano, dotato di portoncino blindato e composto da soggiorno con angolo cottura, camera matrimoniale, disimpegno e bagno dotato di box doccia. L'appartamento, completamente ARREDATO, è dotato di riscaldamento autonomo e climatizzatore. Per maggiori ed ulteriori informazioni e/o dettagli in merito, contattare l'age nzia al n.0426-901385 Gabetti è da 70 anni leader nel settore immobiliare. La nostra esperienza e competenza è al tuo servizio per offrirti una consulenza qualificata e puntuale sulle tue operazioni di compravendita di immobili. Se stai cercando case in vendita, Gabetti seleziona per te le migliori offerte sul territorio proponendoti appartamenti, case singole, ville o case di nuova costruzione di varie dimensioni e caratteristiche. La nostra Agenzia ha la propria sede ad Adria (RO) in Via Chieppara n.59 ed ha tre filiali : a Cavarzere (VE) Via dei Martiri n.59, a Sottomarina di Chioggia (VE) Viale Veneto n.12 ed a Rovigo (RO) Piazza Repubblica 2. Trattiamo la vendita e la locazione di ogni tipo di immobile: appartamenti (monolocali, bilocali, ovvero miniappartamenti, trilocali, quadrilocali), ville (singole, bifamiliari e/o a schiera), rustici ed uffici, lotti edificabili, terreni agricoli, attività in genere. Tutte le nostre agenzie, sono a vostra disposizione in totale e completa sinergia e collaborazione. Per vendere, acquistare o affittare casa, affidati quindi all'esperienza e alla professionalità Gabetti. Ci prendiamo cura di tutte le attività complesse legate alla compravendita e alla locazione dell'immobile, recuperiamo e organizziamo tutta la documentazione necessaria, in tempi brevi, per arrivare al rogito in tutta serenità. Inoltre in agenzia è possibile ricevere assistenza completa per la ricerca di prodotti finanziari alle migliori condizioni di mercato. Gestiamo per te i rapporti con tutti i professionisti coinvolti per una tua maggiore serenità. Perchè Gabetti ti dà sempre la soluzione ideale.

Condizioni economiche

Contratto: Vendita
Prezzo: 85'000€
Arredato: Si

Informazioni principali

Tipologia: Trilocale
Città: Adria
Superficie: 62 m²
N° locali: 3
N° bagni: 1
N° Camere: 1
Piano:
Cucina: Angolo Cottura

Efficenza energetica

Classe energetica: 2015-G
Ipe: 350.00 kwm2
Climatizzatore: Si
Anno di costruzione: 0
Riscaldamento: autonomo

Dati inserzione

ID Offrocasa.com: 10251510
Data inserimento: 11/10/2023
Rif. Agenzia: A4259VRG
Rif. Agenzia A4259VRG

Gabetti

via Chieppara 32 - Adria (Rovigo)
0426/901385
Richiedi Info dal form:
Accetto l'Informativa Privacy


Condividi

Gabetti

via Chieppara 32 - Adria (Rovigo)

Trilocale in Vendita a Adria, 85'000€, 62 m², arredato

Chiama
Contatta