Casale in Vendita a Capannori, zona Pieve San Paolo, 119'000€, 320 m²

Locali: 6
Piano: su più livelli
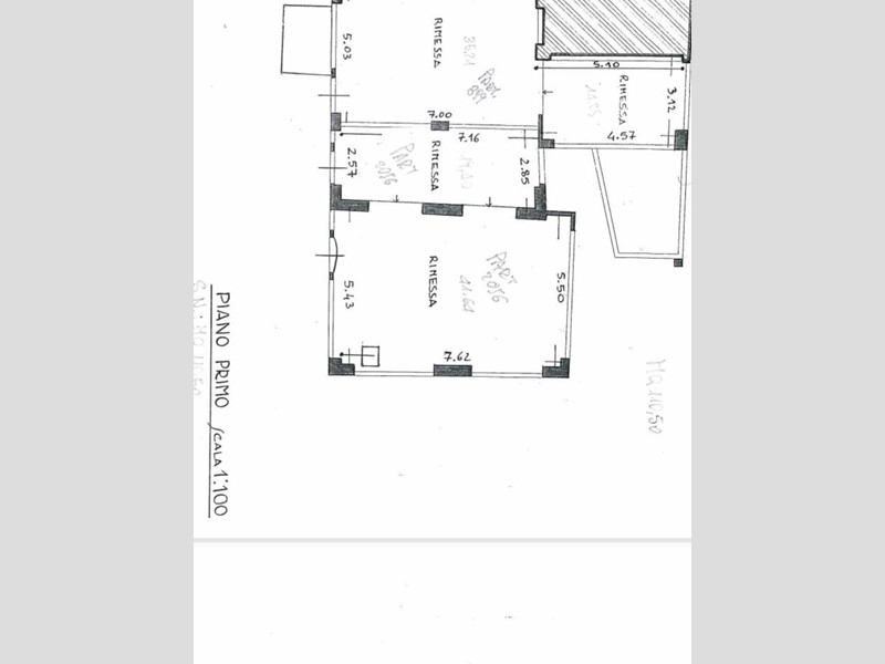
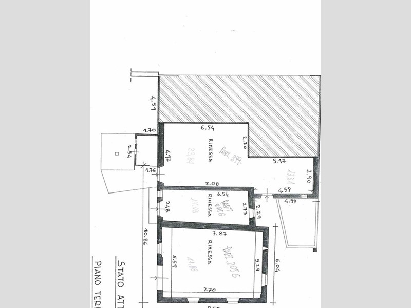
Pieve San Paolo - Capannori. Fienile finale di corte libero su tre lati di circa 350 mq compreso volume condonato, ideale per la realizzazione di una o piu' unita' abitative, corredato da circa 1800 mq di giardino esclusivo. Da Ristrutturare. Si precisa che l'indirizzo pubblicato nell'annuncio non corrisponde all'esatta geolocalizzazione dell'immobile, preghiamo quindi di contattarci telefonicamente o via email per avere informazioni piu' dettagliate, Rif. RU40

Condizioni economiche

Contratto: Vendita
Prezzo: 119'000€
Prezzo trattabile: si

Informazioni principali

Tipologia: Casale
Città: Capannori
Zona: Pieve San Paolo
Superficie: 320 m²
N° locali: 6
Piano: su più livelli
Posto auto: 3
Giardino: privato
Esposizione: nord-sud-ovest

Efficenza energetica

Classe energetica: Esente
Ristrutturato: no

Dati inserzione

ID Offrocasa.com: 10222653
Data inserimento: 13/09/2023
Rif. Agenzia: 1100756/1150/RU40
Rif. Agenzia 1100756/1150/RU40

ERREA Immobiliare

Via Via Borgo Giannotti,, 651 - Lucca
0583342413
Richiedi Info dal form:
Accetto l'Informativa Privacy


ERREA Immobiliare

Via Via Borgo Giannotti,, 651 - Lucca

Casale in Vendita a Capannori, zona Pieve San Paolo, 119'000€, 320 m²

Chiama
Contatta