Villa bifamiliare in Vendita a Certaldo, 320'000€, 250 m²

Locali: 10
Camere: 3
Piano: piano terra
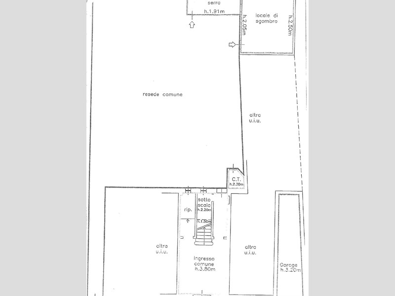
In zona centrale , tranquilla e residenziale di Certaldo vendiamo una bella villa con ottimo potenziale ma da ristrutturare completamente al suo interno. La villa è completamente indipendente ed è composta da n.2 unità abitative poste rispettivamente al piano primo ed al piano secondo ed ultimo , di dimensioni simili , ma con caratteristiche e pertinenze diverse e con ingresso a comune al piano terreno . Di seguito la descrizione nel dettaglio . Dal portone di accesso alla villa si accede ad un ingresso ampio dove troviamo una scala che collega i due piani abitativi , piano primo e piano secondo ed ultimo. Al piano terreno troviamo locali di pertinenza ed a comune delle n.2 unità abitative ovvero n.2 ripostigli sotto- scala di cui uno avente il collegamento diretto con il giardino privato che si trova sul retro della villa e che misura circa 240 mq. , mentre al piano ammezzato un piccolo locale sempre uso ripostiglio. Al piano primo salendo le scale arriviamo al primo appartamento composto di 5 vani utili oltre a bagno , una terrazza dal lato della cucina ed una seconda terrazza molto grande ed abitabile che affaccia sul retro della villa e quindi sul giardino privato e retrostante . Continuando a salire le scale arriviamo al piano secondo ed ultimo abitativo dove troviamo un altro appartamento composto sempre da 5 vani utili e bagno. Inoltre facendo una ultima rampa di scale arriviamo al piano soffitta ed al sottotetto . Vi sono due possibilità di accesso al giardino: uno interno alla proprietà , come è stato riportato sopra ovvero passando da uno dei due ripostigli sotto scala , ed uno esterno accedendo da un cancello pedonale posto appunto all'esterno della villa , inoltre all'interno del giardino accediamo a sua volta a due locali uso magazzino per una superficie complessiva di circa 34 mq. . Infine vi è anche un garage di circa 18 mq. di pertinenza della villa posto al piano terreno livello strada e comunque posizionato sotto una delle terrazze della stessa villa . Per maggiori informazioni e/o documentazione e/o sopralluogo contattare la nostra agenzia immobiliare .

Condizioni economiche

Contratto: Vendita
Prezzo: 320'000€

Informazioni principali

Tipologia: Villa bifamiliare
Città: Certaldo
Superficie: 250 m²
N° locali: 10
N° Camere: 3
Piano: piano terra

Efficenza energetica

Classe energetica: E
Ipe: 110,00 kwm2
Ristrutturato: no

Dati inserzione

ID Offrocasa.com: 10215882
Data inserimento: 06/09/2023
Rif. Agenzia: 988695/1261/80
Rif. Agenzia 988695/1261/80

Agenzia Immobiliare Fusi Servizi Srl

Via Via S. Sardelli,, 15 - Poggibonsi (Siena)
0577938397
Richiedi Info dal form:
Accetto l'Informativa Privacy


Agenzia Immobiliare Fusi Servizi Srl

Via Via S. Sardelli,, 15 - Poggibonsi (Siena)

Villa bifamiliare in Vendita a Certaldo, 320'000€, 250 m²

Chiama
Contatta