Appartamento in Vendita a Pontedera, 385'000€, 110 m²

Locali: 5
Bagni: 2
Camere: 3
Piano: piano terra
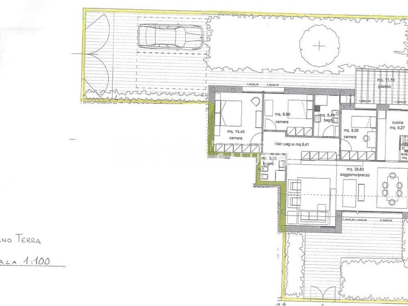
Pontedera - Bellaria - Vendesi appartamento di nuova costruzione in complesso quadrifamiliare posto al piano terra con ingresso indipendente e giardino privato. L'immobile si compone in: ingresso in ampio salone di mq 38, cucina abitabile, ripostiglio/lavanderia, disimpegno notte, una camera matrimoniale, due camerette e due bagni. Completano la proprietà il giardino esclusivo fronte/retro e due posti auto esclusivi. L'appartamento sarà realizzato con finiture di pregio e con la massima efficienza energetica. Posizione strategica per la vicinanza al centro, raggiungibile a piedi e ottimamente collegata ai servizi, ma allo stesso tempo isolata dal caos cittadino mantenendo una connotazione più naturalistica per la vicinanza a zone verdi. Ottimamente collegata anche alla strada di grandi comunicazioni FI-PI-LI. Classe energetica: A4 - Rif. 1291

Condizioni economiche

Contratto: Vendita
Prezzo: 385'000€
Prezzo trattabile: si

Informazioni principali

Tipologia: Appartamento
Città: Pontedera
Superficie: 110 m²
N° locali: 5
N° bagni: 2
N° Camere: 3
Piano: piano terra
Posto auto: 2
Giardino: privato

Efficenza energetica

Classe energetica: A4
Ipe: 20,00 kwm2
Anno di costruzione: 2022

Caratteristiche

Videocitofono: si

Dati inserzione

ID Offrocasa.com: 10208390
Data inserimento: 29/08/2023
Rif. Agenzia: 1060055/1361/1291-A
Rif. Agenzia 1060055/1361/1291-A

SALUTINI ANDREA Agenzia Immobiliare

Via Via Pacinotti,, 11 - Pontedera (Pisa)
3476587866
Richiedi Info dal form:
Accetto l'Informativa Privacy


Condividi

SALUTINI ANDREA Agenzia Immobiliare

Via Via Pacinotti,, 11 - Pontedera (Pisa)

Appartamento in Vendita a Pontedera, 385'000€, 110 m²

Chiama
Contatta