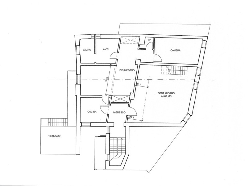
Appartamento in Vendita a Thiene, 139'000€, 160 m²

Locali: 6
Thiene centro storico, in palazzina dei primi '900 con sole 4 unità immobiliari , attico mansardato in restauro al secondo ed ultimo piano. Affascinante ed unico nel suo genere consente di gestire gli spazi personalizzandoli fin nei minimi particolari. Informazioni in agenzia L' Agenzia Immobiliare Innovagroup si occupa principalmente di compravendita e affittanza di immobili : appartamenti case ville multiproprietà capannoni uffici negozi I collaboratori di Innovagroup saranno ben lieti di mettere al Vostro servizio la propria pluriennale esperienza in tutte le fasi della compravendita o della locazione del Vostro immobile. Questi i servizi offerti dall'agenzia immobiliare Innovagroup, sita in Piazza Chilesotti a Thiene: - valutazione: l'agente immobiliare di Innovagroup è in grado, grazie alla sua esperienza maturata negli anni sul territorio, di dare al vostro immobile una valutazione REALE in linea con le quotazioni del mercato, sia per quanto riguarda la vendita che per la locazione. - visure catastali e ipotecarie: Innovagroup esegue visure catastali e ipotecarie al fine di acquisire le informazioni necessarie per l'assoluta tutela della sua clientela. - assistenza mutuo: Innovagroup collabora con diversi agenti creditizi appoggiati ad istituti di credito conosciuti in modo da ottenere mutui o finanziamenti idonei alle situazioni personali - variazioni catastali e ape: Innovagroup offre la consulenza di tecnici qualificati per la sistemazione di pratiche urbanistiche e catastali e/o al rilascio di attestati di prestazione energetica (APE) - registrazione contratti: l'agente immobiliare di Innovagroup si occupa in prima persona della registrazione di qualsiasi contratto, di compravendita o locazione, presso gli ufficio preposti. - assistenza fino al rogito: sarà carico dell'agente di Innovagroup procurarsi la necessaria documentazione al fine della definizione del rogito notarile. Il suddetto agente inoltre accompagnerà il cliente fino alla definizione di quest'ultima fase - Innovagroup esegue servizi di gestione di immobiliare sia per immobili in locazione che in vendita - Innovagroup vi assiste e vi consiglia su pianificazioni di operazioni immobiliari con messa a redditto di capitale immobiliare - L'agenzia immobiliare Innovagroup offre anche servizi di amministrazioni condominiali

Condizioni economiche

Contratto: Vendita
Prezzo: 139'000€
Arredato: No

Informazioni principali

Tipologia: Appartamento
Città: Thiene
Superficie: 160 m²
N° locali: 6

Efficenza energetica

Classe energetica: C
Ipe: 102.2 KWh/m2a
Anno di costruzione: 1900
Condizioni stabile: Da ristrutturare

Dati inserzione

ID Offrocasa.com: 10204161
Data inserimento: 19/08/2023
Rif. Agenzia: 88848
Rif. Agenzia 88848

INNOVA Group

p.zza Chilesotti 8 - Thiene (VI)
0445.367849
Richiedi Info dal form:
Accetto l'Informativa Privacy


Condividi

INNOVA Group

p.zza Chilesotti 8 - Thiene (VI)

Appartamento in Vendita a Thiene, 139'000€, 160 m²

Chiama
Contatta