Villa in Vendita a Siena, 740'000€, 290 m², arredato

Locali: 6
Bagni: 3
Camere: 4
Piano: piano terra
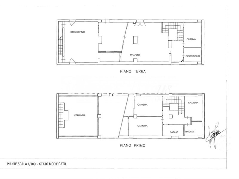
Siena Comune di Siena posizione tranquilla e aperta nella campagna in vendita villa singola ristrutturata libera completamente su quattro lati con grande aia pavimentata e ampio giardino privato tutto recintato . La villa si compone piano terra da doppio salone con camino, cucina abitabile , bagno di servizio . Studio o quarta camera. Piano superiore tre belle camere con terrazzo due bagni . ottimo immobile in pieno relax

Condizioni economiche

Contratto: Vendita
Prezzo: 740'000€
Prezzo trattabile: si
Arredato: si

Informazioni principali

Tipologia: Villa
Città: Siena
Superficie: 290 m²
N° locali: 6
N° bagni: 3
N° Camere: 4
Piano: piano terra
Posto auto: 4
Giardino: privato

Efficenza energetica

Classe energetica: In attesa di certificazione
Ristrutturato: si

Dati inserzione

ID Offrocasa.com: 10203938
Data inserimento: 18/08/2023
Rif. Agenzia: 955681/1170/v514
Rif. Agenzia 955681/1170/v514

TOSCANA DOMUS Immobiliare

Viale Viale Cavour,, 94 - Siena
0577058145
Richiedi Info dal form:
Accetto l'Informativa Privacy


TOSCANA DOMUS Immobiliare

Viale Viale Cavour,, 94 - Siena

Villa in Vendita a Siena, 740'000€, 290 m², arredato

Chiama
Contatta