Appartamento in Vendita a Lucca, 1'000'000€, 450 m²

Locali: 10+
Bagni: 5
Piano: piano terra
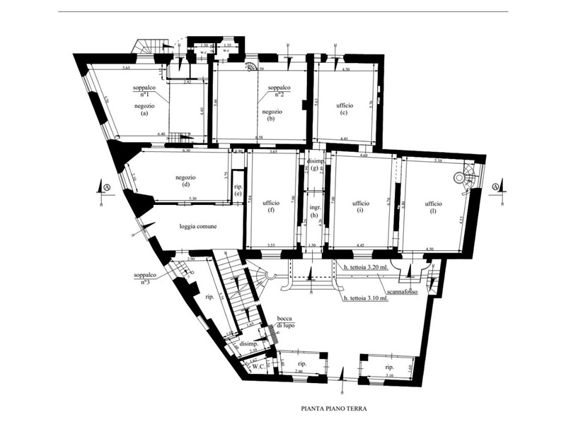
Appartamento in palazzo signorile posto al piano terreno con accesso oltre che condominiale anche singolo con resede privata e possibilità di parcheggio interno. Si sviluppa su 2 piani (terra e seminterrato) per complessivi 13 vani + cucina e 5 bagni (al piano sottostante soffitti a faccia vista a volta) Attuale destinazione ad uffici ma è possibile il cambio di destinazione.

Condizioni economiche

Contratto: Vendita
Prezzo: 1'000'000€

Informazioni principali

Tipologia: Appartamento
Città: Lucca
Superficie: 450 m²
N° locali: 10+
N° bagni: 5
Piano: piano terra
Posto auto: 2
Giardino: privato

Efficenza energetica

Classe energetica: G
Ipe: 160,00 kwm2
Ristrutturato: si

Dati inserzione

ID Offrocasa.com: 10174441
Data inserimento: 12/07/2023
Rif. Agenzia: 939872/1272/02402
Rif. Agenzia 939872/1272/02402

Immobiliare WHY NOT?

Viale Viale C. Castracani,, 313 - Lucca
0583467058
Richiedi Info dal form:
Accetto l'Informativa Privacy


Condividi

Immobiliare WHY NOT?

Viale Viale C. Castracani,, 313 - Lucca

Appartamento in Vendita a Lucca, 1'000'000€, 450 m²

Chiama
Contatta