Appartamento in Vendita a Cecina, zona Cecina Marina, 365'000€, 90 m²
        
    
        
    
        
    
    
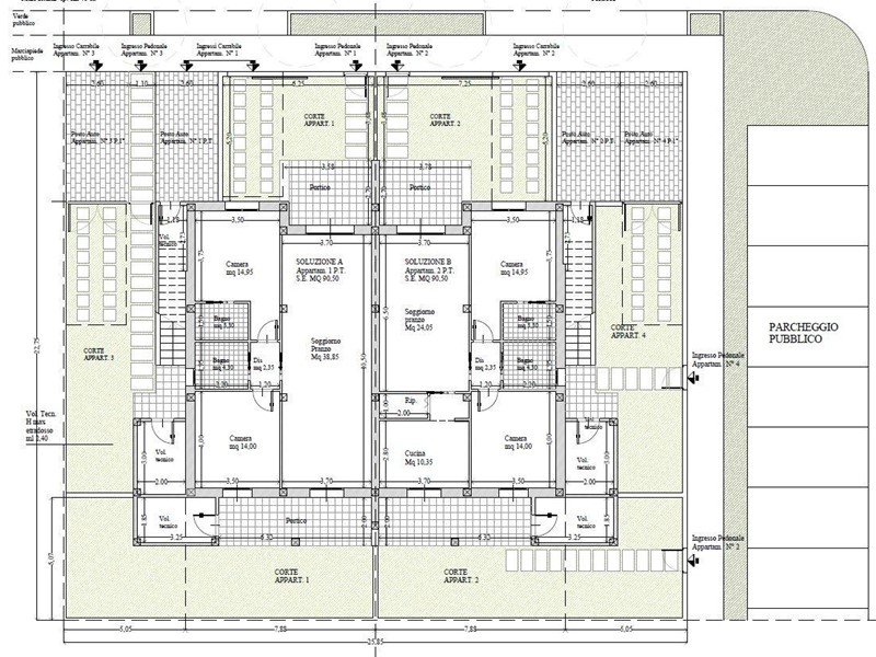
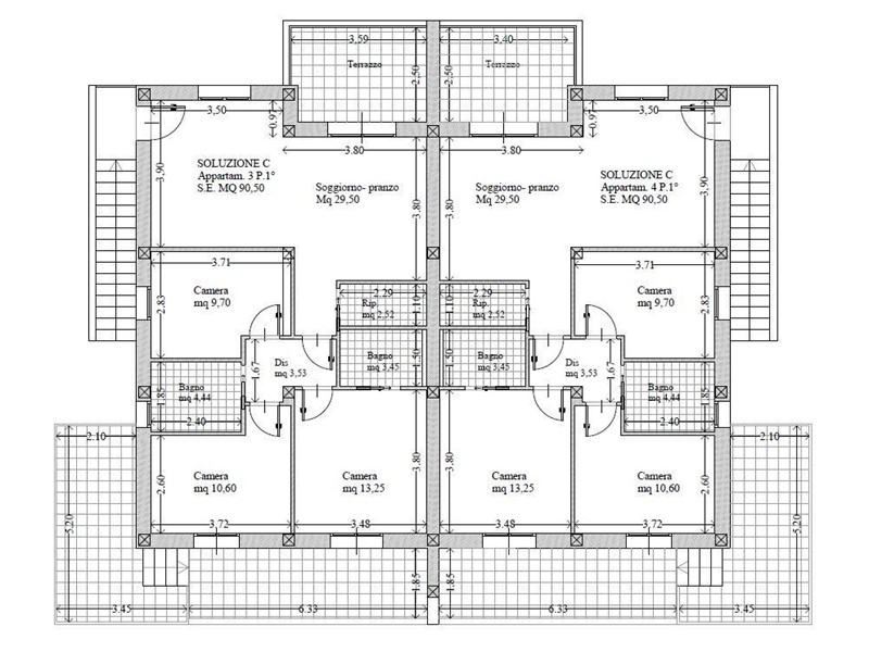
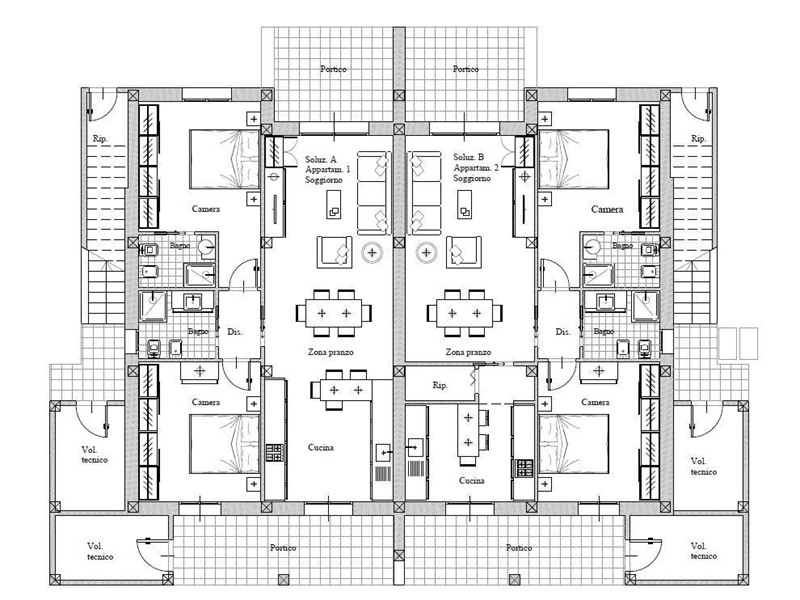
        Cecina Marina: in contesto di nuova realizzazione, dove usufruire delle aree a verde, piste ciclabili e pedonali, parcheggi, il tutto secondo la concezione delle nuove e moderne lottizzazioni, si vendono appartamenti di 90 mq, in fabbricato QUADRIFAMILIARE. Gli ingressi sono indipendenti, da giardino esclusivo e ognuno ha n. 2 posti auto.  Gli interni si possono personalizzare a seconda delle esigenze, con zona giorno open space, oppure soggiorno e zona pranzo separata, oltre alla possibilità di avere 2 camere matrimoniali o 3 camere + doppi servizi e locale tecnico. Al piano terreno si accede da giardino e porticato sul fronte, con portico e altra porzione di giardino sul retro. Il piano primo ha la sua porzione di giardino, accesso da scala esterna, un terrazzo sulla zona pranzo e uno con accesso dalla camera. Le rifiniture sono di ottima qualità, gli impianti sono progettati con sistemi di ultima generazione, con riscaldamento a pavimento e impianto fotovoltaico.  Appartamenti suddivisi in 4 o 5 vani (con 2 matrimoniali o matrimoniale + 2 singole) - complessivi 90 mq al p. terra o primo.
Prezzo a partire da € 365.000 - Classe energetica: A3 - Rif. 108
	
    
    
    
        
        
            Condizioni economiche
            
                Contratto: Vendita
            
            
                Prezzo: 365'000€
            
            
         
        
            Informazioni principali
            
                Tipologia: Appartamento
            
            
                Città: Cecina
            
            
                
                    Zona: Cecina Marina
                
            
                
                    Superficie: 90 m²
                
            
                
                    N° locali: 5
                
            
                
                    N° bagni: 2
                
            
                
                    N° Camere: 3
                
            
                
                    Piano: 1°
                
            
                
                    Posto auto: 2
                
            
                
                    Giardino: privato
                
            
         
        
            Efficenza energetica
            
                Classe energetica: A3
            
            
                
                    Ipe: 20,00 kwm2
                
            
		 
        
            
                Dati inserzione
                
                    ID Offrocasa.com: 10174405
                
                
                
                    Data inserimento: 12/07/2023
                
                
                    
                        Rif. Agenzia: 1156708/216/108
                    
                
             
        
	 
    
    
        
Appartamento in Vendita a Cecina, zona Cecina Marina, 365'000€, 90 m²