Casa Indipendente in Vendita a Lucca, zona Mugnano, 115'000€, 180 m²
        
    
        
    
        
    
    
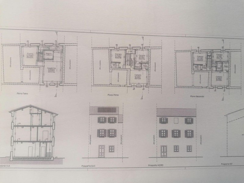
        Mugnano, a circa 1,5 km dalle Mura, terratetto centrale da ristrutturare di circa 180 mq disposto su tre livelli composto al piano terra da disimpegno d'ingresso, soggiorno, cucina e bagno, al piano primo da 3 vani, al piano secondo da 3 vani, corredato da giardino esclusivo di circa 30 mq con stanza uso ripostiglio, parcheggio per 4/5 auto, ideale per realizzare attività ricettiva: permesso gia' approvato per ricavare 6 camere con 6 bagni , cucina e soggiorno. Classe energetica: G. Si precisa che l'indirizzo pubblicato nell'annuncio non corrisponde all'esatta geolocalizzazione dell'immobile, preghiamo quindi di contattarci telefonicamente o via email per avere informazioni piu' dettagliate. Rif. C10
	
    
    
    
        
        
            Condizioni economiche
            
                Contratto: Vendita
            
            
                Prezzo: 115'000€
            
            
                
                    Prezzo trattabile: si
                
            
         
        
            Informazioni principali
            
                Tipologia: Casa Indipendente
            
            
                Città: Lucca
            
            
                
                    Zona: Mugnano
                
            
                
                    Superficie: 180 m²
                
            
                
                    N° locali: 8
                
            
                
                    N° bagni: 6
                
            
                
                    N° Camere: 6
                
            
                
                    Posto auto: 5
                
            
                
                    Giardino: privato
                
            
         
        
            Efficenza energetica
            
                Classe energetica: G
            
            
                
                    Ipe: 160,00 kwm2
                
            
                
                    Ristrutturato: no
                
            
		 
        
            
                Dati inserzione
                
                    ID Offrocasa.com: 10169523
                
                
                
                    Data inserimento: 08/07/2023
                
                
                    
                        Rif. Agenzia: 1054829/1150/C10
                    
                
             
        
	 
    
    
        
Casa Indipendente in Vendita a Lucca, zona Mugnano, 115'000€, 180 m²