Capannone in Vendita a Massa, 700'000€, 3000 m²

Locali: 4
Piano: piano terra
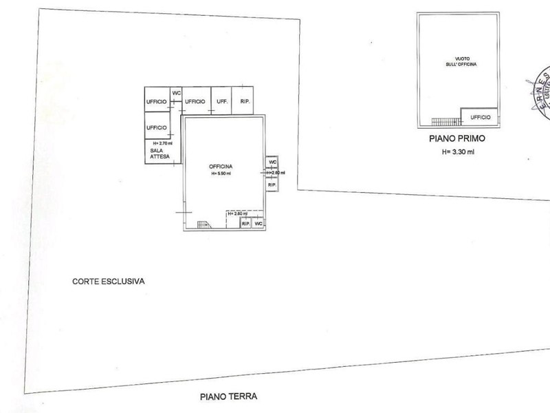
Massa Capannone artigianale in vendita con spazio di 3000 mq scoperti, autofficina di 150 mq completa di ponte ed attrezzi vari,ufficio di 90 mqa con 3 stanze,bagno e 2 entrate indipendenti,così da poter avere anche 2 attività, e possibilità di ampliare del 30% ad uso artigianale. ⬇️⬇️⬇️⬇️⬇️⬇️⬇️⬇️⬇️⬇️ Si precisa ai signori clienti che gli indirizzi inseriti all'interno degli annunci sono puramente indicativi e vogliono solo essere un utile ausilio nell'individuazione della zona ove è ubicato l'immobile pur rispettando la 'Privacy' e la riservatezza dei venditori. Classe energetica: G - Rif. 2002b Richiesta 700000 trattabili

Condizioni economiche

Contratto: Vendita
Prezzo: 700'000€
Prezzo trattabile: si

Informazioni principali

Tipologia: Capannone
Città: Massa
Superficie: 3000 m²
N° locali: 4
Piano: piano terra

Efficenza energetica

Classe energetica: G
Ipe: 160,00 kwm2
Ristrutturato: si

Dati inserzione

ID Offrocasa.com: 10169015
Data inserimento: 08/07/2023
Rif. Agenzia: 1045978/1109/1202b
Rif. Agenzia 1045978/1109/1202b

BROKER X TE

Viale Viale Galilei,, 122 - Carrara (Massa Carrara)
3276227293
Richiedi Info dal form:
Accetto l'Informativa Privacy


BROKER X TE

Viale Viale Galilei,, 122 - Carrara (Massa Carrara)

Capannone in Vendita a Massa, 700'000€, 3000 m²

Chiama
Contatta