Capannone in Vendita a Cerreto Guidi, 850'000€, 1317 m²

Locali: 6
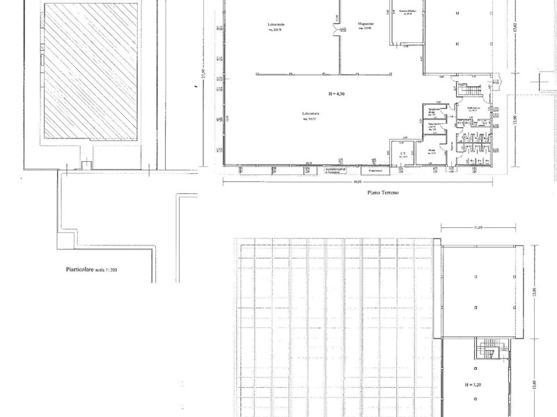
Cerreto Guidi, zona Stabbia, vendesi capannone industriale composto da una zona laborartorio e zona dipendenti e uffici. La zona laboratorio è divisa in magazzino, laboratori e camera blindata. Al piano terra mensa, spoiatoi, wc separati e ambulatorio. oltre locale tecnico e loggiato di 140mq al grezzo. Al piano superiore uffici al grezzo per circa 140mq e ulteriore magazzino a loggiato per altri 140mq. infine al piano secondo rimessa mansardata. superfici esterne di mq 1000 circa ripartito sui 4 lati. Capannone industriale in vendita - 6 vani - 1317 mq Rif. F-1100

Condizioni economiche

Contratto: Vendita
Prezzo: 850'000€
Prezzo trattabile: si

Informazioni principali

Tipologia: Capannone
Città: Cerreto Guidi
Superficie: 1317 m²
N° locali: 6

Efficenza energetica

Classe energetica: G
Ipe: 160,00 kwm2
Ristrutturato: si

Dati inserzione

ID Offrocasa.com: 10143761
Data inserimento: 14/06/2023
Rif. Agenzia: 1142554/558/F-1100
Rif. Agenzia 1142554/558/F-1100

LA MERIDIANA Agenzia Immobiliare

Via Via V. Gramsci,, 2 - Lamporecchio (Pistoia)
057381781
Richiedi Info dal form:
Accetto l'Informativa Privacy


LA MERIDIANA Agenzia Immobiliare

Via Via V. Gramsci,, 2 - Lamporecchio (Pistoia)

Capannone in Vendita a Cerreto Guidi, 850'000€, 1317 m²

Chiama
Contatta