Casa Indipendente in Vendita a Massa, zona Marina di Massa, 350'000€, 138 m², arredato
        
    
        
    
        
    
    
        VILLINO IN PARTE RISTRUTTURATO A MARINA DI MASSA RIF 4092
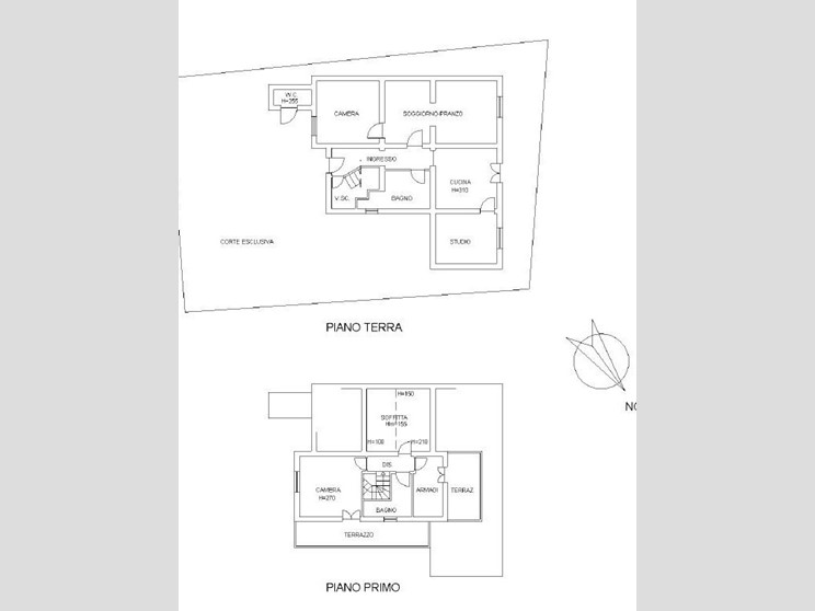
A Marina di Massa, a 13 minuti a piedi dal mare, vendiamo villino disposto su due livelli. L' unità abitativa è composta da un appartamento a piano terra di 100 mq da ristrutturare ma abitabile: composto da ingresso, cucina, grande salotto con caminetto, camera matrimoniale, cameretta e cantine; al piano primo troviamo un piccolo alloggio, ampliamento del 2003 per cui di recente costruzione, in parte mansardato e con soggiorno, cucina e camera matrimoniale, bacone e terrazza dove si può disporre comodamente un tavolo. L' immobile è circondato da una corte di 200 mq, recintata e con grande cancello carraio e posti auto.
Informazioni sull'ubicazione: A Marina di Massa, a 1,1 km dal mare, in zona residenziale e tranquilla.
Specificazioni dell'immobile: Totalmente indipendente, da ristrutturare il piano terra mentre il primo piano, costruito nel 2003, è in ottimo stato e così chiaramente il tetto.
Descrizione Giardino: Per la maggior parte corte pavimentata. Circonda la casa sui 4 lati benchè il lato sud ovest sia una sottile fascia di marciapiede. Largo Cancello carraio da cui si accede alla zona parcheggio e di ingresso alla casa
Classe Energetica: g
	
    
    
    
        
        
            Condizioni economiche
            
                Contratto: Vendita
            
            
                Prezzo: 350'000€
            
            
                
                    Arredato: si
                
            
         
        
            Informazioni principali
            
                Tipologia: Casa Indipendente
            
            
                Città: Massa
            
            
                
                    Zona: Marina di Massa
                
            
                
                    Superficie: 138 m²
                
            
                
                    N° locali: 6
                
            
                
                    N° bagni: 2
                
            
                
                    N° Camere: 3
                
            
                
                    Piano: su più livelli
                
            
                
                    Posto auto: 3
                
            
                
                    Giardino: privato
                
            
                
                    Esposizione: 2003
                
            
         
        
            Efficenza energetica
            
                Classe energetica: G
            
            
                
                    Ipe: 160,00 kwm2
                
            
                
                    Ristrutturato: no
                
            
		 
        
            
                Dati inserzione
                
                    ID Offrocasa.com: 10127827
                
                
                
                    Data inserimento: 28/05/2023
                
                
                    
                        Rif. Agenzia: 1095129/1366/4092
                    
                
             
        
	 
    
    
        
Casa Indipendente in Vendita a Massa, zona Marina di Massa, 350'000€, 138 m², arredato