Capannone in Vendita a Larciano, 1'600'000€, 1600 m²

Locali: 7
Piano: piano terra
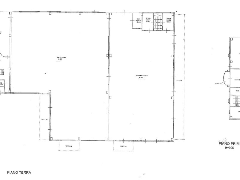
Larciano, zona industriale, a 15kmn circa dalla Firenze-Mare (A11) e 20km dalla FI-PI-LI, vendesi capannone industriale di circa 1600mq oltre zona esterna di 3000mq circa. Così composta: un ampio locale con altezza di 8metri e uno più piccolo (circa 550mq) alto 5,5metri, uffici, spogliatoi divisi per uomini e donne con bagno e locali docce al piano superiore ulteriori uffici e bagno. Due banchine di carico frontali. Il tutto in ottimo stato, pari al nuovo. Prezzo trattabile Rif. F-1098

Condizioni economiche

Contratto: Vendita
Prezzo: 1'600'000€
Prezzo trattabile: si

Informazioni principali

Tipologia: Capannone
Città: Larciano
Superficie: 1600 m²
N° locali: 7
Piano: piano terra

Efficenza energetica

Classe energetica: G
Ipe: 160,00 kwm2
Ristrutturato: si

Dati inserzione

ID Offrocasa.com: 10115170
Data inserimento: 17/05/2023
Rif. Agenzia: 1133551/558/F-1098
Rif. Agenzia 1133551/558/F-1098

LA MERIDIANA Agenzia Immobiliare

Via Via V. Gramsci,, 2 - Lamporecchio (Pistoia)
057381781
Richiedi Info dal form:
Accetto l'Informativa Privacy


LA MERIDIANA Agenzia Immobiliare

Via Via V. Gramsci,, 2 - Lamporecchio (Pistoia)

Capannone in Vendita a Larciano, 1'600'000€, 1600 m²

Chiama
Contatta