Casa Indipendente in Vendita a Lucca, zona Sant'Anna, 130'000€, 85 m², con Box
        
    
        
    
        
    
    
        N049G - Sant'anna - Lucca
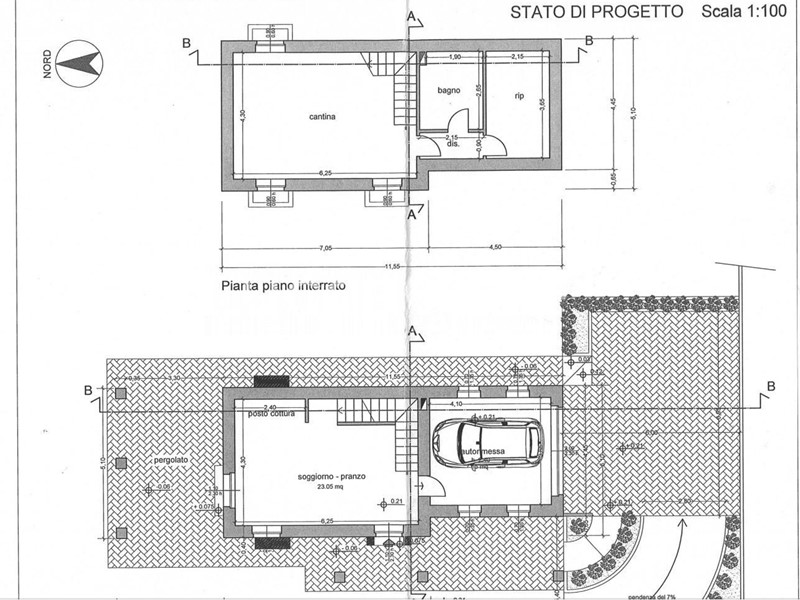
In zona interna, amena e molto verde, vendesi terreno con permesso per casa singola con giardino privato di circa 800mq di giardino disposto sui 4 lati dell'abitazione. Attualmente è stata realizzato lo scavo e gettate le pareti e la platea della parte interrata. Il progetto prevede una sola camera matrimoniale, ma dovrebbe essere possibile ricavarne una seconda.
Oggetto unico per chi cerca soluzione da personalizzare a proprio gusto e secondo le proprie esigenze, in una bella campagna lonana dai rumori, ma vicina a tutti i servizi. Combinazione di fattori davvero unica.
Classe energetica: Esente -
	
    
    
    
        
        
            Condizioni economiche
            
                Contratto: Vendita
            
            
                Prezzo: 130'000€
            
            
                
                    Prezzo trattabile: si
                
            
         
        
            Informazioni principali
            
                Tipologia: Casa Indipendente
            
            
                Città: Lucca
            
            
                
                    Zona: Sant'Anna
                
            
                
                    Superficie: 85 m²
                
            
                
                    N° locali: 3
                
            
                
                    N° bagni: 1
                
            
                
                    Piano: su più livelli
                
            
                
                    Box: si
                
            
                
                    Posto auto: 5
                
            
                
                    Giardino: privato
                
            
         
        
            Efficenza energetica
            
                Classe energetica: Esente
            
            
                
                    Anno di costruzione: 2022
                
            
		 
        
            
                Dati inserzione
                
                    ID Offrocasa.com: 10110687
                
                
                
                    Data inserimento: 12/05/2023
                
                
                    
                        Rif. Agenzia: 1131661/1299/N049G
                    
                
             
        
	 
    
    
        
Casa Indipendente in Vendita a Lucca, zona Sant'Anna, 130'000€, 85 m², con Box