Villa in Vendita a San Giuliano Terme, zona Molina di Quosa, 220'000€, 120 m²

Locali: 5
Piano: su più livelli
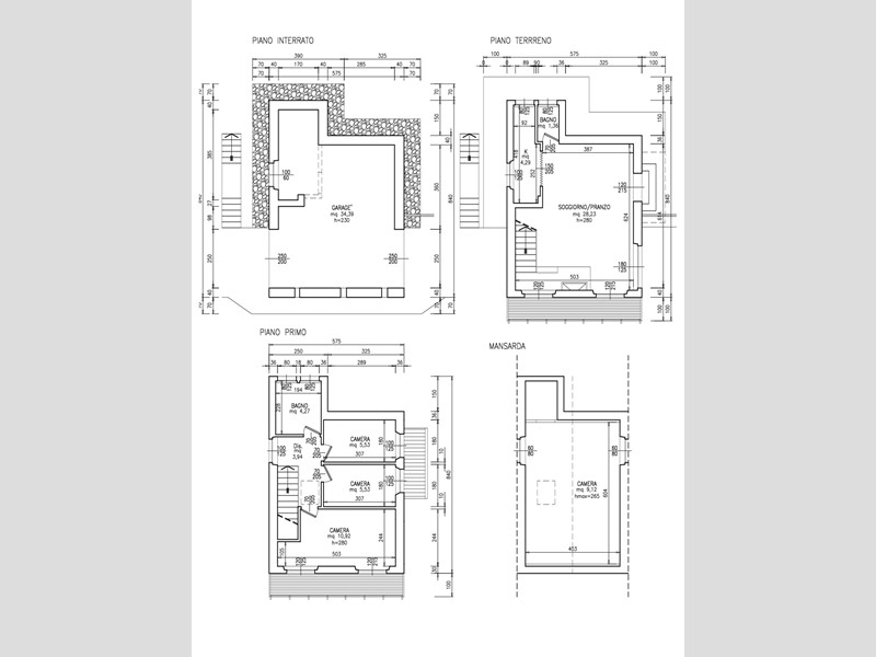
Molina di Quosa -(San Giuliano Terme) - A 6 Km da Molina di Quosa nel Comune di San Giuliano, sulla strada panoramica sopra il paese vendesi villa di 5 vani - 120 mq - con ingresso indipendente - disposta su 3 livelli. Completamente immersa in un bosco di pini e lecci, questa villetta singola con ampio giardino è dislocata su 4 piani fuori terra. Nel 1°piano, dislocato sotto il piano stradale, ma di facile accesso per mezzo di viottolo e cancello, si trova l'ampio garage, la sala caldaia e uno stanzino di servizio. Dal piano stradale, tramite l'ampio giardino patronale, si accede direttamente al soggiorno con camino, angolo cottura e bagnetto di servizio; i locali sono ampiamente illuminati da 3 finestre, un finestrone e una porta finestra che dà l'accesso al primo terrazzo. Il 2°piano è composto dall'ingresso notte, una camera matrimoniale, 2 camerine e il bagno; anche qui i locali godono di illuminazione naturale attraverso 4 finestre (una per ogni locale) e una porta finestra che, come al 1°piano, dà accesso al secondo terrazzo. L'ultimo piano infine è costituito dalla mansarda (accessibile tramite una scala retrattile): ampio locale più un piccolo ripostiglio sottotetto per i depositi dell'acqua. Riscaldamento autonomo. Caratteristica peculiare: un serbatoio esterno per il recupero e il filtraggio dell'acqua piovana di circa 16.000 l. I depositi sottotetto e l'autoclave forniscono il fabbisogno idrico all'intera struttura. Altre caratteristica è il Box privato per parcheggio auto. Classe energetica G. Disponibilità immediata. Prezzo € 220.000 € Rif. YV1229A

Condizioni economiche

Contratto: Vendita
Prezzo: 220'000€

Informazioni principali

Tipologia: Villa
Città: San Giuliano Terme
Zona: Molina di Quosa
Superficie: 120 m²
N° locali: 5
Piano: su più livelli

Efficenza energetica

Classe energetica: G
Ipe: 160,00 kwm2
Ristrutturato: si

Dati inserzione

ID Offrocasa.com: 10095571
Data inserimento: 27/04/2023
Rif. Agenzia: 1072056/575/YV1229A
Rif. Agenzia 1072056/575/YV1229A

VALERIO TERRENI Immobiliare

Via Via Tosco Romagnola,, 2633 - Cascina (Pisa)
3894318324
Richiedi Info dal form:
Accetto l'Informativa Privacy


VALERIO TERRENI Immobiliare

Via Via Tosco Romagnola,, 2633 - Cascina (Pisa)

Villa in Vendita a San Giuliano Terme, zona Molina di Quosa, 220'000€, 120 m²

Chiama
Contatta