Casa Indipendente in Vendita a San Miniato, zona San Miniato Basso, 700'000€, 830 m²

Locali: 10+
Camere: 8
Piano: su più livelli
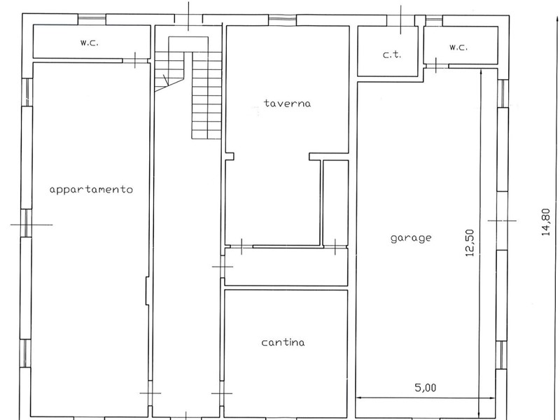
In zona centrale, Casa a solo, disposta su tre piani fuori terra. Si compone al piano terra da un ampio vano con servizio, attualmente adibito ad ufficio, taverna,ripostiglio, cantina, oltre ad ampio garage, bagno di servizio e locale caldaia; al piano primo appartamento della supeficie di mq. 240 c.a. composto da ingresso soggiorno, cucina e zona pranzo con terrazzo, due camere matrimoniali, cameretta, studio, doppi servizi e ripostiglio; al piano secondo si compone di due appartamenti: un bilocale con servizio; appartamento composto da ingresso, tre vani, ampio ripostiglio e bagno ed ampio terrazzo abitabile; oltre a soffitta. Completa la proprietà un resede esclusivo su quattro lati.

Condizioni economiche

Contratto: Vendita
Prezzo: 700'000€
Prezzo trattabile: si

Informazioni principali

Tipologia: Casa Indipendente
Città: San Miniato
Zona: San Miniato Basso
Superficie: 830 m²
N° locali: 10+
N° Camere: 8
Piano: su più livelli

Efficenza energetica

Classe energetica: G
Ipe: 249,87 kwm2
Ristrutturato: no

Dati inserzione

ID Offrocasa.com: 10092999
Data inserimento: 22/04/2023
Rif. Agenzia: 1043504/195/1892
Rif. Agenzia 1043504/195/1892

CIULLI Agenzia Immobiliare

Via via Augusto Conti, 36 - San Miniato (Pisa)
0571418731
Richiedi Info dal form:
Accetto l'Informativa Privacy


CIULLI Agenzia Immobiliare

Via via Augusto Conti, 36 - San Miniato (Pisa)

Casa Indipendente in Vendita a San Miniato, zona San Miniato Basso, 700'000€, 830 m²

Chiama
Contatta