Villetta a schiera in Vendita a Albettone, zona Piazza Umberto I, 32, 62'000€, 208 m², con Box

Locali: 4
Bagni: 2
Camere: 2
Piano: Terra e primo
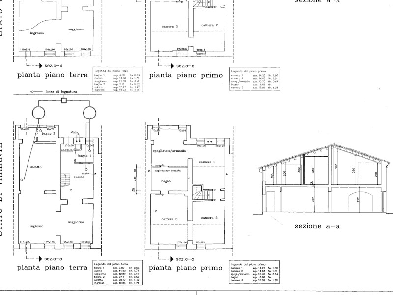
AFFARE DA NON PERDERE CASA AD ALBETTONE (VI) Affare da non perdere, visibile fino a lunedì 10 aprile, zona centrale di Albettone, casa affiancata indipendente, di circa 208 mq e precisamente di 180mq di superfice calpestabile, su 2 livelli, collegati da scala interna. Composta al piano terra ingresso, soggiorno, pranzo, angolo cottura, ripostiglio, mentre al piano secondo troviamo due grandi camere con bagno a doppio accesso. La distribuzione risulta essere rispettivamente di 90 mq al primo piano e 90 mq al secondo piano, una legnaia di 23 mq, area animali 6 mq, corte esclusiva di 51,50 mq, autorimessa di 31,50 mq. L'immobile è in buono stato e dotata di impianto di riscaldamento autonomo a radiatori e pavimentazione in ceramica in tutti gli ambienti. La casa è situata in contesto tranquillo ma vicino ai principali servizi. Siamo in piazza Umberto I ad Albettone quindi di fronte il Municipio. La soluzione è ideale per chi desidera vivere in tranquillità, ma allo stesso tempo avere a portata di mano tutti i servizi necessari. Posta, panetteria, farmacia, scuola primaria, banca/bancomat, salone di bellezza e spa, ferramenta, bar, sono infatti raggiungibili a piedi dato che sono dislocati nel raggio di poche decine di metri dalla casa. La scuola secondaria invece è invece a circa un chilometro. Per chi ama le colline, i colli euganei si trovano a 15 minuti. Ottima posizione strategica anche per chi debba spostarsi per lavoro può arrivare a Vicenza in circa 30 minuti, a Padova con poco più 40 minuti e ad Este con soli 20 minuti. Classe energetica F kw/mq 168 Caratteristiche specifiche Villetta a schiera 2 piani 208 m² commerciali 4 locali 2 bagni Buono stato Riscaldamento autonomo: Gas naturale Certificazione energetica dell'edificio terminato (Legge 90 del 2013, legislazione vigente): (APE: F)

Condizioni economiche

Contratto: Vendita
Prezzo: 62'000€
Prezzo trattabile: Poco
Arredato: Si (Acquisto a parte)
Libero: Velocemente

Informazioni principali

Tipologia: Villetta a schiera
Città: Albettone
Zona: Piazza Umberto I, 32
Vicinanze: Centro paese, vicino ai Colli Euganei
Superficie: 208 m²
N° locali: 4
N° bagni: 2
N° Camere: 2
Piano: Terra e primo
Box: Si
Posto auto: Si
Cucina: Si

Efficenza energetica

Classe energetica: F
Ipe: 168
Climatizzatore: Predisposizione
Anno di costruzione: 1966
Condizioni stabile: Buone / abitabile
Ristrutturato: Si
Pavimenti: Cotto
Serramenti esterni: Doppio vetro legno
Impianti a norma: Si
Riscaldamento: Autonomo

Caratteristiche

Cantina: Si

Dati inserzione

ID Offrocasa.com: 10074368
Data inserimento: 05/04/2023
Rif. Agenzia: AFFARE DA NON PERDERE CASA AD ALBETTONE (VI)
Rif. Agenzia AFFARE DA NON PERDERE CASA AD ALBETTONE (VI)

Cristian

Via Crociata, 85 - Camponogara (Venezia)
3282198336
Richiedi Info dal form:
Accetto l'Informativa Privacy


Cristian

Via Crociata, 85 - Camponogara (Venezia)

Villetta a schiera in Vendita a Albettone, zona Piazza Umberto I, 32, 62'000€, 208 m², con Box

Chiama
Contatta