Trilocale in Vendita a Cesena, zona Centrale, 329'000€, 136 m², con Box

Locali: 3
Camere: 2
Piano: 2
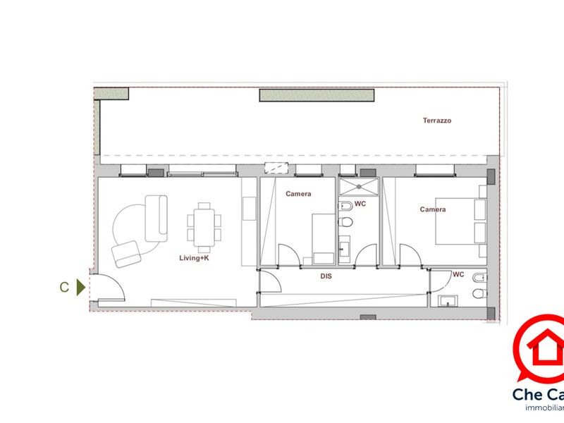
CESENA - CENTRALE : W(e)AREHOUSE - esclusivi appartamenti di nuova costruzione. Soluzione C/piano secondo ed ultimo : Ingresso su ampio e luminoso open space di circa 32 mq calpestabili, con grande porta finestra scorrevole che apre su terrazzo abitabile di circa 44 mq. Ideale per barbecue, pranzi cene e relax estivi. Questa soluzione è particolarmente interessante poiché il soffitto di tutta la casa è a volta, con un altezza minima di metri 3,00 fino al colmo di metri 4,70. La zona notte offre due camere da letto, una matrimoniale ed una singola : entrambe hanno accesso al terrazzo. A servizio della soluzione, due bagni ed uno è possibile riservarlo per la principale. Si completa di garage. In posizione defilata dal traffico e lontana dal rumore, adiacente a tutti i servizi e con la città storica raggiungibile in passeggiata, Il progetto W(e)AREHOUSE è stato sviluppato con il preciso intento di offrire una dimora di prestigio, in grado di trasmettere un forte senso di esclusività attraverso scelte mirate di carattere sia formale che funzionale. L’edificio nasce all’interno di contesto di riqualificazione urbana che prevede la trasformazione tramite la demolizione e ricostruzione di un fabbricato industriale insediato in un contesto residenziale. La qualità architettonica è sottolineata da scelte stilistiche estremamente moderne, eleganti ed essenziali, che vestono con gusto volumi armonici e proporzionati.Confort, tecnologia e qualità pongono ogni alloggio ad un livello di eccellenza. Struttura portante in cemento armato, blocco termico, tetto in legno isolato da lana di roccia, isolamento acustico tramite materiale fonoassorbente nei tramezzi, nelle pareti divisorie tra le unità abitative, nei solai ecc. Pompa di calore elettrica, riscaldamento a pavimento, impianto fotovoltaico. Un capitolato ricercato ed una vasta scelta dei materiali sono a vostra disposizione. Massimo risparmio energetico, classe energetica A4, probabile raggiungimento della classificazione NZEB Per info e prenotazioni contatti il numero 393.8797904

Condizioni economiche

Contratto: Vendita
Prezzo: 329'000€
Arredato: No

Informazioni principali

Tipologia: Trilocale
Città: Cesena
Zona: Centrale
Superficie: 136 m²
N° locali: 3
N° Camere: 2
Piano: 2
Box: Si

Efficenza energetica

Classe energetica: A4
Anno di costruzione: 2024
Condizioni stabile: Nuovo
Riscaldamento: Teleriscaldamento

Caratteristiche

Ascensore: Si

Dati inserzione

ID Offrocasa.com: 10058760
Data inserimento: 21/03/2023
Rif. Agenzia: 8639
Rif. Agenzia 8639

Che Casa Srl

Viale Oberdan, 539 - Cesena (FC)
0547.480143
Richiedi Info dal form:
Accetto l'Informativa Privacy


Condividi

Che Casa Srl

Viale Oberdan, 539 - Cesena (FC)

Trilocale in Vendita a Cesena, zona Centrale, 329'000€, 136 m², con Box

Chiama
Contatta