Casale in Vendita a Santa Croce sull'Arno, 350'000€, 420 m²

Locali: 10
Bagni: 6
Camere: 7
Piano: su più livelli
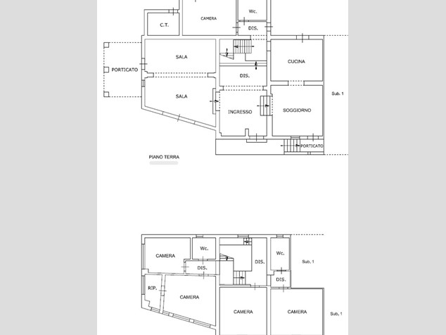
Tuffata in una collina che domina il paesaggio circostante, una maestosa casa colonica divisa in due unità immobiliari completamente indipendenti, ma che possono anche costituire un’unica residenza solo con l’apertura di un varco al piano terra e di uno al piano primo. L’unità immobiliare A è composta da ampio ingresso, doppia zona living con uscita verso il loggiato, sala da pranzo, cucina abitabile con accesso al giardino, studio o salottino lettura oppure camera ospiti e bagno. Al piano primo, a cui si accede attraverso una imponente scala, si sviluppano 4 camere da letto, di cui una con guardaroba privato, e due bagni. L’unità immobiliare B è così composta: ingresso su soggiorno, cucina abitabile con accesso all’esterno, bagno al piano terra; al primo piano, tre camere da letto e un bagno. Un forno, un ricovero attrezzi e una dispensa, sono in aderenza alla colonica. Arricchiscono la proprietà un fienile completamente da ristrutturare, una grande tettoia e un parco di oltre due ettari. La colonica è ristrutturata quasi totalmente, ovvero non è stato apposto il pavimento del primo piano, e gli impianti elettrico ed idrico devono essere completati, oltre alle porte di ingresso mancanti. Si precisa che l'indirizzo non identifica l'ubicazione esatta dell'immobile, ai fini della tutela della riservatezza del venditore.

Condizioni economiche

Contratto: Vendita
Prezzo: 350'000€
Prezzo trattabile: si

Informazioni principali

Tipologia: Casale
Città: Santa Croce sull'Arno
Superficie: 420 m²
N° locali: 10
N° bagni: 6
N° Camere: 7
Piano: su più livelli
Giardino: privato

Efficenza energetica

Classe energetica: G
Ipe: 187,00 kwm2
Ristrutturato: si

Dati inserzione

ID Offrocasa.com: 10012768
Data inserimento: 11/02/2023
Rif. Agenzia: 1095094/1329/1169
Rif. Agenzia 1095094/1329/1169

LE CASE DI VALE Agenzia Immobiliare

Viale Viale Michelangelo,, 58 - Fucecchio (Firenze)
335/7024544
Richiedi Info dal form:
Accetto l'Informativa Privacy


LE CASE DI VALE Agenzia Immobiliare

Viale Viale Michelangelo,, 58 - Fucecchio (Firenze)

Casale in Vendita a Santa Croce sull'Arno, 350'000€, 420 m²

Chiama
Contatta