Casa Indipendente in Vendita a Cossignano, 245'000€, 140 m²

Locali: 6
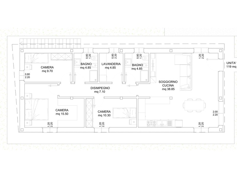
Cossignano - villa di circa 120 mq con soggiorno-cucina, 3 camere, 2 bagni e ampio giardino. Le costruzioni saranno realizzate unicamente in bioedilizia, tenendo conto delle caratteristiche del territorio, utilizzando il legno per la struttura portante e canapa per la tamponatura esterna. La canapa ha contemporaneamente funzione di tamponamento, isolante termico, isolante acustico e regolazione dell'umidità interna, garantendo salute e comfort delle persone che ci abiteranno. Gli impianti utilizzano solo fonti di energia rinnovabile (fotovoltaico e solare termico). La villetta può essere progettata e realizzata in base alle specifiche esigenze del cliente, variando i metri abitabili e gli spazi accessori, studiando la funzionalità degli ambienti a seconda del personale modo di vivere la casa.

Condizioni economiche

Contratto: Vendita
Prezzo: 245'000€
Arredato: No

Informazioni principali

Tipologia: Casa Indipendente
Città: Cossignano
Superficie: 140 m²
N° locali: 6

Efficenza energetica

Classe energetica:
Anno di costruzione: 0

Dati inserzione

ID Offrocasa.com: 10004170
Data inserimento: 04/02/2023
Rif. Agenzia: 2247
Rif. Agenzia 2247

Centro Servizi Immobiliari

Via F.Turati, 70 - San Benedetto del Tronto (AP)
392.9812597
Richiedi Info dal form:
Accetto l'Informativa Privacy


Centro Servizi Immobiliari

Via F.Turati, 70 - San Benedetto del Tronto (AP)

Casa Indipendente in Vendita a Cossignano, 245'000€, 140 m²

Chiama
Contatta