Appartamento in Vendita a Santa Croce sull'Arno, 270'000€, 110 m²

Locali: 6
Bagni: 2
Camere: 3
Piano: piano terra
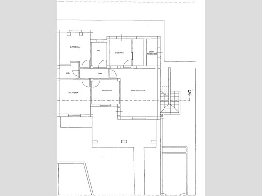
Santa Croce sull’Arno, lato Fucecchio, in campagna: è proposta la vendita di un elegante appartamento con ingresso indipendente, facente parte di un fabbricato di sole 4 unità immobiliari tutte con ingresso indipendente. L’appartamento, sito al piano terra, ha un giardino sia frontale che tergale, comprensivo di posti auto. La residenza è composta da ingresso su soggiorno con camino, cucina abitabile con uscita verso il giardino, dispensa/locale tecnico, bagno. La zona notte si compone di due camere matrimoniali, una cameretta ed un secondo servizio. Riscaldamento e raffrescamento a pavimento. Classe energetica elevata, in quanto si tratta di una nuova costruzione. Si precisa che l'indirizzo non identifica l'ubicazione esatta dell'immobile, ai fini della tutela della riservatezza del venditore.

Condizioni economiche

Contratto: Vendita
Prezzo: 270'000€

Informazioni principali

Tipologia: Appartamento
Città: Santa Croce sull'Arno
Superficie: 110 m²
N° locali: 6
N° bagni: 2
N° Camere: 3
Piano: piano terra
Giardino: privato

Efficenza energetica

Classe energetica: In attesa di certificazione
Anno di costruzione: 2022

Dati inserzione

ID Offrocasa.com: 10003265
Data inserimento: 04/02/2023
Rif. Agenzia: 1093834/1329/1164.T
Rif. Agenzia 1093834/1329/1164.T

LE CASE DI VALE Agenzia Immobiliare

Viale Viale Michelangelo,, 58 - Fucecchio (Firenze)
335/7024544
Richiedi Info dal form:
Accetto l'Informativa Privacy


Condividi

LE CASE DI VALE Agenzia Immobiliare

Viale Viale Michelangelo,, 58 - Fucecchio (Firenze)

Appartamento in Vendita a Santa Croce sull'Arno, 270'000€, 110 m²

Chiama
Contatta