Case in vendita Zoagli

Migliora Ricerca
830'000€
200 m²

Locali 5

Bagni 2

Rustico di prestigio in vendita a Zoagli Incastonato tra le affascinanti colline di Zoagli, questo prestigioso rustico gode di una vista straordinaria sul mare, un panorama che lascia senza fiato e rende ogni giorno speciale. Attualmente allo stato grezzo, l'immobile rappresenta un’opportunità irripetibile per trasformarlo in una residenza esclusiva, realizzata su misura secondo i desideri dell'...

Vedi Annuncio
Rustico in Vendita a Zoagli, 830'000€, 200 m²
1 / 17
495'000€
130 m²

Locali 4

Bagni 3

Camere 2

Rustico in vendita a Zoagli Il rustico si erge in una pittoresca e tranquilla località di Zoagli, precisamente Vallette Ronco, e vanta una fantastica vista mare. La struttura originale, caratterizzata da muri in pietra che si fondono con l'ambiente circostante, sarà trasformata attraverso un progetto approvato in una raffinata villetta unifamiliare. Il piano terra, accoglierà un luminoso soggior...

Vedi Annuncio
Rustico in Vendita a Zoagli, 495'000€, 130 m²
1 / 11
495'000€
250 m²

Locali 10+

Bagni 4

Camere 6

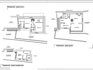
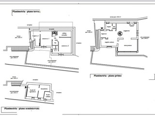
Remax vi propone a Zoagli una Casa indipendente su tre piani in fase di ristrutturazione, possibilità di personalizzare attualmente tutte le parti sono state progettate ma non realizzate. l'immobile si suddivide : - piano terra,3 camere ,soggiono,disimpegno ,cucina,bagno con ampliamento esterno ,cantina. possibilità di realizzare una piscina nel terreno circostante - 1 °piano 1 camera,soggio...

Vedi Annuncio
Rustico in Vendita a Zoagli, 495'000€, 250 m²
1 / 49
15'000€
15000 m²

Rif. 4061 - Zoagli - Via Canevelli - Terreno agricolo a ottocento metri dal mare - Quindicimila metriquadrati contigui - Accesso carrabile - Soleggiato - Idoneo azienda agricola o floricoltura o allevamento - Richiesta Euro 15.000,00 - Gobleu Immobiliare - PER INFO DIRETTE E APPUNTAMENTI 3665914174 SU WHATSAPP OPPURE DIRETTAMENTE IN AGENZIA IN RAPALLO CORSO ITALIA 2 APERTA TUTTI I GIORNI ESCLUSO F...

Vedi Annuncio
Terreno agricolo in Vendita a Zoagli, zona MARE, 15'000€, 15000 m²
550'542€
128 m²

Locali 3

Camere 2

Piena proprietà 1/1 Villetta monofamiliare ubicata a Zoagli (GE) - Località Vallette, civ. 1/A, edificio 4, piano PT-P1 oltre a due terreni circostanti. - Il Prezzo visualizzato è la Base d'Asta in quanto l’immobile è oggetto di esecuzione immobiliare venduto tramite Asta Giudiziaria. - L'immobile aggiudicato, viene venduto libero e sgombro da persone cose ed ipoteche nello stato di fatto e di...

Vedi Annuncio
Casa Indipendente in Vendita a Zoagli, 550'542€, 128 m²
1 / 9
< 1 2 3 >