Terreno agricolo in Vendita a Santa Maria a Monte, zona Ponticelli, 10'000€ 10'000€ 2530 m² Terreno agricolo di 2.530 mq, tutto pianeggiante in Via Lungomonte tra Ponticelli e Montecalvoli "lato Usciana". Il terreno è accessibile da strada vicinale che fa da accesso ad altri terreni. Terreno a destinazione seminativo. Possibilità di altro terreno con varie metrature distaccato. Vedi Annuncio
Terreno agricolo in Vendita a Santa Maria a Monte, zona San Donato, 20'000€ 20'000€ 6500 m² San Donato - Santa Maria a Monte Terreno agricolo in vendita. Appezzamento di terreno agricolo, mq. 6.500, di forma regolare, pianeggiante, con accesso da via comunale, adatto per realizzare un orto, attività rilassante, salutare e gratificante, che permette di riconnettersi con la natura, risparmiare sulla spesa e alimentarsi con prodotti biologici freschi. Rif. 8525CAD Vedi Annuncio 1 / 3
Terreno agricolo in Vendita a Santa Maria a Monte, 35'000€ 35'000€ 22560 m² Asta Immobiliare Giudiziaria | Tribunale Pisa Terreno Agricolo Santa Maria a Monte di 22560 mq. Oggetto della presente vendita sono i seguenti beni: Diritto di piena proprietà al 100% di terreno agricolo della superficie complessiva di mq 22.560,00. Superficie lorda: -terreno agricolo di mq 22560,00 Questo annuncio è stato realizzato da StudioAdvisorAste estraendo le informazioni dalla document... Vedi Annuncio
Terreno agricolo in Vendita a Santa Maria a Monte, 55'000€ 55'000€ 3000 m² MONTECALVOLI- Proponiamo terreno agricolo di circa mq. 3.000 pianeggiante e recintato con ingresso da cancello scorrevole in ferro, il tutto comprende 60 olivi, pozzo artesiano e nel centro del terreno troviamo annesso in muratura con tetto, composto da un unico ambiente e bagno con doccia, ben rifinito e con contattore della luce. Ideale per chi ama la campagna e passare giornate in pieno relax. ... Vedi Annuncio 1 / 7
Terreno edificabile in Vendita a Santa Maria a Monte, 90'000€ 90'000€ 1000 m² Santa Maria a Monte - Zona pianeggiante di campagna, vicino ai servizi - VENDESI terreno residenziale di completamento di circa mq 1.000, con indice di edificabilità 0,5 mc/mq, ottimo per la realizzazione di una bifamiliare o casa singola - Facilità di allacciatura a tutte le utenze - FRONTE STRADA - OCCASIONE - Rif. S1515 Vedi Annuncio
Terreno agricolo in Vendita a Santa Maria a Monte, zona Ponticelli, 20'000€ 20'000€ 11800 m² Terreni agricoli per complessivi 11.850 mq circa, tutti pianeggianti in Via Lungomonte tra Ponticelli e Montecalvoli "lato Usciana". I terreni sono divisi in 4 appezzamenti separati, di cui uno con capanna condonata e pozzo a sterro. Terreni a destinazione seminativo. Possibilità di vendita frazionata. Vedi Annuncio 1 / 5
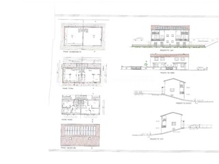
Terreno edificabile in Vendita a Santa Maria a Monte, 90'000€ 90'000€ 1050 m² CERCHI IL TERRENO IDEALE PER REALIZZARE LE TUE CASE DEI SOGNI? A Santa Maria a Monte, in una splendida zona collinare e panoramica ma a pochi minuti dai principali servizi e dal centro del paese, proponiamo in vendita un terreno edificabile di circa 1.000 mq. Il lotto, di forma regolare e con accesso diretto dalla strada principale, ha già un progetto approvato per la costruzione di due villette b... Vedi Annuncio 1 / 7
Terreno agricolo in Vendita a Santa Maria a Monte, zona Ponticelli, 30'000€ 30'000€ 20800 m² S. Maria a Monte - Nella frazione di Ponticelli, a due passi dalla zona residenziale, appezzamento di terreno agricolo di mq 20.800, tutto pianeggiante e attualmente coltivato, con accesso tramite strada di campagna sterrata e da altro passo collegato alla strada comunale. Ottimo come investimento - AFFARE - Terreno agricolo in vendita - Rif. S1975 Vedi Annuncio
Terreno agricolo in Vendita a Santa Maria a Monte, zona Melone, 15'000€ 15'000€ 10200 m² Santa Maria a Monte - Nella zona collinare di Melone - appezzamento di terreno agricolo scosceso di circa mq 10.200,. Attualmente incolto con arbusti, piante e parte a bosco. Rif. S1972 Vedi Annuncio
Terreno edificabile in Vendita a Santa Maria a Monte, 150'000€ 150'000€ 210 m² Santa Maria a Monte - Vendesi terreno edif. residenziale di 1175 mq con progetto approvato per un fabbricato bifamiliare o unifamiliare di 209,88 mq e 601,95 mc. Terreno posto in bellissima zona panoramica. - Rif. 1884-s Vedi Annuncio