Rustico in Vendita a Montechiaro d'Acqui, 55'000€ 55'000€ 180 m² Locali 8 Camere 4 In posizione straordinaria per panoramicità e privacy, in un contesto naturale unico proponiamo questa propreità con accesso da strada sterrata. Il terreno su cui sorge il fabbricato, ad oggi collabente, è di circa 9.500 mq in buona parte sfruttabili e pianeggianti. La volumetria consente il recupero di circa 150 mq abitativi, considerando l'architettura tipica della zona, il fabbricato meriterebb... Vedi Annuncio 1 / 18
Rustico in Vendita a Montechiaro d'Acqui, 50'000€ 50'000€ 60 m² Locali 3 Bagni 1 Camere 3 Immerso nella campagna con vista straordinaria sulla valle, vendesi rustico in pietra originale su due livelli. Il fabbricato si compone di un vano chiuso al piano terreno, uno aperto e il fienile sovrastante. L'immobile è accatastato come magazzino, ma è possibile richiedere un cambio di destinazione d'uso. Acqua a pochi metri, ma è presente un pozzo di acqua sorgiva, luce non presente, da verifi... Vedi Annuncio 1 / 14
Cascina in Vendita a Montechiaro d'Acqui, zona Cerceto, 100'000€ 100'000€ 600 m² Locali 10+ Bagni 2 Camere 10 Intera cascina, ottima esposizione, vista sulla valle, poche centinaia di metri da stazione ferroviaria e negozi. Due livelli, numerosi locali ad uso abitativo e deposito. Inoltre dispone di 70.000 mq di terreno circostante. Pozzo, attrezzatura agricola e vinicola. Prezzo dopo visione. Vedi Annuncio 1 / 7
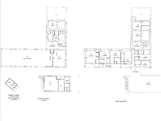
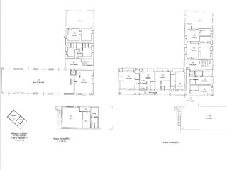
Attività commerciale in Vendita a Montechiaro d'Acqui, 637'500€ 637'500€ 1078 m² Locali 10+ Camere 9 Complesso immobiliare destinato a Resort con destinazione d'uso agrituristica, con accesso privato tramite una strada sterrata delimitata da sbarra, costituito sostanzialmente da tre corpi di fabbrica connessi tra loro, una piscina e un bungalow ad uso alloggio custode, e una estesa area libera di pertinenza sistemata a prato posti in zona agricola del Comune di Montechiaro d’Acqui. - Il Prezzo... Vedi Annuncio 1 / 9