Case in vendita Massarosa

Migliora Ricerca
115'000€
115 m²

Locali 3

Bagni 1

Camere 2

COLLINA MASSAROSA - RUSTICO INDIPENDENTE DA ULTIMARE Sulle colline sopra Massarosa (LU), a circa 10 km dalle spiagge di Viareggio e della Versilia, proponiamo in vendita questo Rustico indipendente con giardino, da ultimare! L'abitazione attualmente si sviluppa su due livelli, piano terra sotto strada e piano primo, il tutto circondato da resede esclusiva in parte pianeggiante e con accesso carra...

Vedi Annuncio
Casa di corte in Vendita a Massarosa, zona Pieve a Elici, 115'000€, 115 m²
1 / 13
480'000€
250 m²

Locali 6

Bagni 2

Camere 4

CASALE 250MQ PIANO TERRA: Cantina - 2 vani da personalizzare - Rimessaggio - Bagno PIANO PRIMO: Cucina - Soggiorno - 4 camere - bagno TERRENO POSTO AUTO === Nel comune di Massarosa, e più precisamente in località Pian di Conca, disponiamo in vendita di casale di 250mq con terreno agricolo di 2 ettari. L'edifico si dispone su due livelli, entrambi fuori terra. L'accesso principale della casa ...

Vedi Annuncio
Casa di corte in Vendita a Massarosa, zona Pian di Conca, 480'000€, 250 m²
1 / 46
115'000€
86 m²

Locali 2

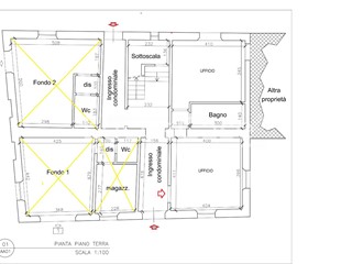
N233K - SEI ALLA RICERCA DEL TUO UFFICIO O VUOI FARE UN INVESTIMENTO ? COMUNE DI MASSAROSA ( Lucca) nel cuore della frazione di Quiesa, dove a due passi hai mezzi e negozi di prima necessità Ti propongo al piano secondo ed ultimo di palazzina anni 30 interamente ed esternamente ristrutturata e di pochissime unità immobiliari un ufficio di mq commerciale 56 corredato da bellissima ed esclusiva t...

Vedi Annuncio
Ufficio in Vendita a Massarosa, zona Quiesa, 115'000€, 86 m²
120'000€
79 m²

Locali 2

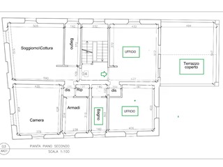
N232K - SEI ALLA RICERCA DEL TUO UFFICIO O VUOI FARE UN INVESTIMENTO ? COMUNE DI MASSAROSA ( Lucca) nel cuore della frazione di Quiesa, dove a due passi hai mezzi e negozi di prima necessità Ti propongo al piano primo di palazzina anni 30 interamente ristrutturata sia interamente che esternamete e di pochissime unità immobiliari, un ufficio di 79 mq commerciali. Ci accede allo stesso dalla do...

Vedi Annuncio
Ufficio in Vendita a Massarosa, zona Quiesa, 120'000€, 79 m²
1 / 17
90'000€
47 m²

Locali 2

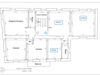
N231K - SEI ALLA RICERCA DEL TUO UFFICIO O VUOI FARE UN INVESTIMENTO ? COMUNE DI MASSAROSA ( Lucca) nel cuore della frazione di Quiesa, dove a de passi hai mezzi e negozi di prima necessità Ti propongo n° al piano terra di palazzina anni 30 interamente ristrutturata di pochissime unità immobiliari un ufficio di mq commerciale 47 posto al piano terra. Doppio accesso da loggia condominiale curat...

Vedi Annuncio
Ufficio in Vendita a Massarosa, zona Quiesa, 90'000€, 47 m²
1 / 9
36'386€
69 m²

Locali 1

Asta Immobiliare Giudiziaria | Tribunale di Lucca Negozio Via Papa Giovanni XXIII Massarosa di 69 mq. oltre Posto Auto Oggetto della presente vendita sono i seguenti beni: Diritto di piena proprietà (100%) di un immobile commerciale costituito da negozio di superficie lorda pari a 69 mq, situata al piano terra. L'unità immobiliare è composta da unico vano ad uso negozio, disimpegno, disimpegno/r...

Vedi Annuncio
Negozio in Vendita a Massarosa, 36'386€, 69 m²
1 / 3
29'742€
56 m²

Locali 1

Asta Immobiliare Giudiziaria | Tribunale di Lucca Negozio Via Papa Giovanni XXIII Massarosa di 56 mq. oltre Posto Auto Oggetto della presente vendita sono i seguenti beni: Diritto di piena proprietà (100%) di un immobile commerciale costituito da negozio di superficie lorda pari a 56,00 mq, situata al piano terra. L'unità immobiliare è composta da unico vano ad uso negozio, disimpegno, disimpegn...

Vedi Annuncio
Negozio in Vendita a Massarosa, 29'742€, 56 m²
1 / 3
43'980€
81 m²

Locali 1

Asta Immobiliare Giudiziaria | Tribunale di Lucca Negozio Via Papa Giovanni XXIII Massarosa di 81 mq. oltre Posto Auto Oggetto della presente vendita sono i seguenti beni: Diritto di piena proprietà (100%) di un immobile commerciale costituito da negozio di superficie lorda pari a 81 mq, situata al piano terra. L'unità immobiliare è composta da unico vano ad uso negozio, disimpegno e bagno ed è ...

Vedi Annuncio
Negozio in Vendita a Massarosa, 43'980€, 81 m²
1 / 3
31'640€
59 m²

Locali 1

Asta Immobiliare Giudiziaria | Tribunale di Lucca Negozio Via Papa Giovanni XXIII Massarosa di 59 mq. oltre Posto Auto Oggetto della presente vendita sono i seguenti beni: Diritto di piena proprietà (100%) di un immobile commerciale costituito da negozio di superficie lorda pari a 59,00 mq, situata al piano terra. L'unità immobiliare è composta da unico vano ad uso negozio, disimpegno e bagno ed...

Vedi Annuncio
Negozio in Vendita a Massarosa, 31'640€, 59 m²
1 / 3
890'000€
240 m²

Locali 6

Bagni 3

Camere 3

Villa in vendita sulle colline della Versilia alle spalle di Viareggio. Una villa di circa 220 mq. escluso portico e terrazza che si sviluppa su due livelli circondata da ampio terreno corredato di piscina con vista mare sull'arcipelago toscano. Al piano terra la villa è composta da un ampio soggiorno, la cucina abitabile, un ripostiglio ed un bagno. Tutte le stanze hanno un uscita sul giardin...

Vedi Annuncio
Rustico in Vendita a Massarosa, 890'000€, 240 m²
1 / 37
< 1 ... 26 27 28 29 30 31 32 33 34 ... 39 >