Case in vendita Airasca

Migliora Ricerca
52'000€
87 m²

Locali 3

Bagni 1

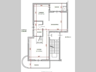
-A) appartamento ad uso abitativo in AIRASCA (TO), Via Vigone 57, con accesso da Via Vigone 57, della superficie commerciale di circa 87 mq.Trattasi di unità immobiliare ad uso abitativo con cantina in stabile condominiale costruito a metà degli anni 1970 con cortile comune e box auto pertinenziale, elevato per cinque piani fuori terra ed uno interrato.L’accesso pedonale principale all’edificio è ...

Vedi Annuncio
Trilocale in Vendita a Airasca, 52'000€, 87 m²
1 / 13
52'000€
87 m²

Locali 4

Bagni 1

Camere 2

Sogna di avere la tua casa ideale a un prezzo imbattibile? Non perdere questa incredibile opportunità! Inserito in una zona residenziale tranquilla, questo appartamento di 87 mq è disponibile per l'acquisto tramite asta immobiliare. Con 4 locali, 2 camere da letto e 1 bagno, questo spazioso appartamento è perfetto per una famiglia o per chi cerca uno spazio confortevole. Goditi il tuo caffè mattut...

Vedi Annuncio
Quadrilocale in Vendita a Airasca, 52'000€, 87 m²
1 / 10
150'000€
95 m²

Locali 4

Bagni 2

Camere 2

Airasca, vendesi appartamento in condominio di recente costruzione. L'immobile di ampia metratura, posto al primo piano è composto da: ingresso, soggiorno, cucina abitabile, due spaziose camere da letto, doppi servizi, ampi balconi/terrazzi dotati di tende da sole e tende invernali. Completano la proprietà la cantina di pertinenza ed il posto auto in cortile. Volendo possibilità di acquistare ...

Vedi Annuncio
Quadrilocale in Vendita a Airasca, 150'000€, 95 m²
1 / 35
129'000€
95 m²

Locali 4

Bagni 1

Camere 2

In un elegante stabile in paramano senza barriere architettoniche, edificato nel 2010, a due passi dal centro paese e da tutti i servizi principali, in contesto tranquillo e signorile, la PROFESSIONECASA di Pinerolo propone quattro locali con finiture di pregio. L'ingresso si apre su un accogliente soggiorno, spazioso e luminoso. La cucina abitabile, moderna e ben attrezzata, è pensata per chi ama...

Vedi Annuncio
Quadrilocale in Vendita a Airasca, 129'000€, 95 m²
1 / 16
215'000€
120 m²

Locali 5

Bagni 2

Camere 3

Airasca: in posizione strategica vicino al centro e ai principali servizi, adiacente alle fermate dei mezzi pubblici la Grimaldi di Borgaretto vende casa indipendente libera sui quattro lati su due livelli con circa 1600 mq di giardino e cortile composta da cucina abitabile, salone con camino a pellet e servizio, tramite c scala collegata internamente al piano primo , tre camere, servizio e due ba...

Vedi Annuncio
Casa Indipendente in Vendita a Airasca, 215'000€, 120 m²
1 / 29
350'000€
350 m²

Bagni 2

Camere 3

AIRASCA- Posta in zona residenziale a ridosso del centro paese, la PROFESSIONEACASA di Pinerolo è lieta di proporvi una soluzione totalmente indipendente provvista di giardino privato. L'immobile, grazie alla presenza di doppi ingressi, può essere vissuto sia in qualità di bifamiliare che unifamiliare. L'ingresso all'abitazione posto al piano terra, avviene direttamente sul salone per poi prosegui...

Vedi Annuncio
Villa bifamiliare in Vendita a Airasca, 350'000€, 350 m²
1 / 44
350'000€
300 m²

Locali 7

Bagni 2

Camere 4

AIRASCA - In zona signorile composta da diverse villette, che creano un contesto elegante e riservato, nelle vicinanze del centro paese, comodo alle scuole e a tutti i servizi, la PROFESSIONECASA di Pinerolo è lieta di proporvi porzione di bifamiliare, indipendente su tre lati, con giardino privato. Non appena la visionerete avrete il sentore di una casa, dove avviene l'amorevole incontro del rigo...

Vedi Annuncio
Villa in Vendita a Airasca, 350'000€, 300 m²
1 / 40
350'000€
740 m²

Capannone di recente realizzazione, avente due portoni carrai, h 7 mt sottotrave, con predisposizione per carroponte (mensole h 6 mt), di 740 mq complessivi, uffici al p. terra con doppi servizi di circa 100 mq. impianto di riscaldamento presente negli uffici alimentato da caldaia a metano. Possibilità di realizzare ulteriori uffici al 1°piano. Impianto di riscaldamento assente nel capannone. Impi...

Vedi Annuncio
Capannone in Vendita a Airasca, 350'000€, 740 m²
1 / 12
52'000€
87 m²

Locali 5

Camere 2

Appartamento ad uso abitativo in Airasca (TO), Via Vigone 57, di circa 87 mq commerciali, situato al 1° piano di un edificio condominiale risalente agli anni '70. L'unità è composta da ingresso, soggiorno, cucina, due camere da letto, un bagno e una cantina. L'appartamento dispone anche di un box auto di 12,85 mq con accesso laterale. L'edificio si sviluppa su cinque piani fuori terra e uno interr...

Vedi Annuncio
Appartamento in Vendita a Airasca, 52'000€, 87 m², con Box
1 / 8